Folland Close, North Baddesley, Southampton - Sparks Ellison
Sold STC

Folland Close

Southampton £350,000

Rooms

3 x bedrooms
2 x bathrooms
1 x reception room

About the property

Located in a quiet cul-de-sac within the village of North Baddesley, this stunning semi-detached townhouse offers a perfect blend of modern living and convenience. Built in 2005, the property boasts three well-proportioned bedrooms, including two with en-suite facilities, making it ideal for families or those seeking extra space. As you enter, you are greeted by a spacious living room that invites relaxation and social gatherings. The modern fitted kitchen is a delight for any culinary enthusiast, providing ample space for meal preparation and entertaining guests. The thoughtful design of this three-storey home ensures that every corner is utilised effectively, offering both comfort and functionality. The location is particularly appealing, as it is within walking distance to local amenities in North Baddesley, ensuring that daily necessities are easily accessible. Furthermore, the vibrant town centre of Romsey, along with the bustling Southampton city centre and the desirable area of Chandlers Ford, are all within easy reach, providing a wealth of shopping, dining, and recreational options. This property is not just a house; it is a home that offers a lifestyle of convenience and modernity in a sought-after area. Whether you are looking to settle down or invest, this townhouse presents an excellent opportunity to enjoy the best of what North Baddesley has to offer.

Map

Floorplan

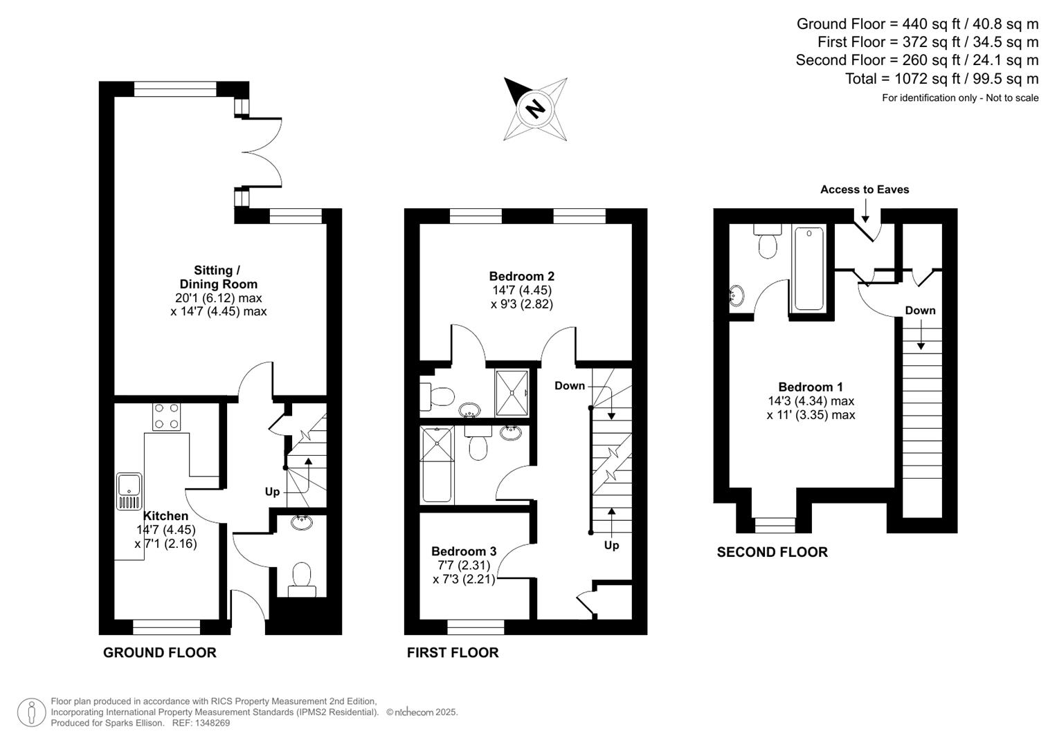
Folland Close, North Baddesley, Southampton floorplan

Accommodation



Ground Floor

Cloakroom: Wash basin, wc.

Sitting/Dining Room: 20'1" x 14'7" (6.12m x 4.45m) Double doors to outside.

Kitchen/Breakfast Room: 14'7" x 7'1" (4.45m x 2.16m) Range of modern white units, electric oven, electric hob with extractor over, integrated dishwasher and microwave, tiled floor, space for table and chairs, tiled floor.

First Floor

Landing: Airing cupboard

Bedroom 2: 14'7" x 9'3" (4.45m x 2.82m)

En-Suite Shower Room: Suite comprising shower cubicle, wash basin, WC.

Bedroom 3: 7'7" x 7'3" (2.31m x 2.21m)

Bathroom: Suite comprising bath with mixer tap and shower unit, wash basin with cupboard under, WC, tiled floor.

Second Floor:

Landing: Storage cupboard.

Bedroom 1: 14'3" x 11' (4.34m x 3.35m) Storage cupboard.

En-Suite: Suite comprising bath, wash basin WC.

Outside



Front: To the front of the property is allocated parking.

Rear Garden: The rear garden is enclosed by fencing and provides a patio area ideal for outside entertaining, a cabin is situated at the rear of the garden with power connected.

Other Information



Tenure: Freehold

Service Charge: £100 per annum

Approximate Age: 2005

Approximate Area: 99.5sqm/1072sqft

Sellers Position: Looking for forward purchase

Heating: Gas central heating

Windows: UPVC double glazing

Infant/Junior School: North Baddesley Infant/Junior School

Secondary School: The Mountbatten School

Local Council: Test Valley Borough Council - 01264 368000

Council Tax: Band C

Agents Note: If you have an offer accepted on a property we will need to, by law, conduct Anti Money Laundering Checks. There is a charge of £60 including vat for these checks regardless of the number of buyers involved.