Bodycoats Road, Chandler's Ford - Sparks Ellison
Sold STC

Bodycoats Road

Chandler's Ford £375,000

Rooms

3 x bedrooms
1 x bathroom
1 x reception room

About the property

Located on Bodycoats Road, this delightful semi-detached family home benefits from three well-proportioned bedrooms along with an open plan kitchen/breakfast room and sitting/dining room.
One of the standout features of this property is its generous 56' rear garden, providing ample outdoor space. Additionally, the property benefits from a driveway and garage, offering secure parking and extra storage options. Its prime location near the centre of Chandler's Ford means that residents can easily access local amenities, schools, and transport links, making daily life both practical and enjoyable.
Offered for sale with no forward chain, this home is ready for you to move in and make it your own. Whether you are a first-time buyer or looking to upsize, this semi-detached house is a wonderful opportunity not to be missed.

Map

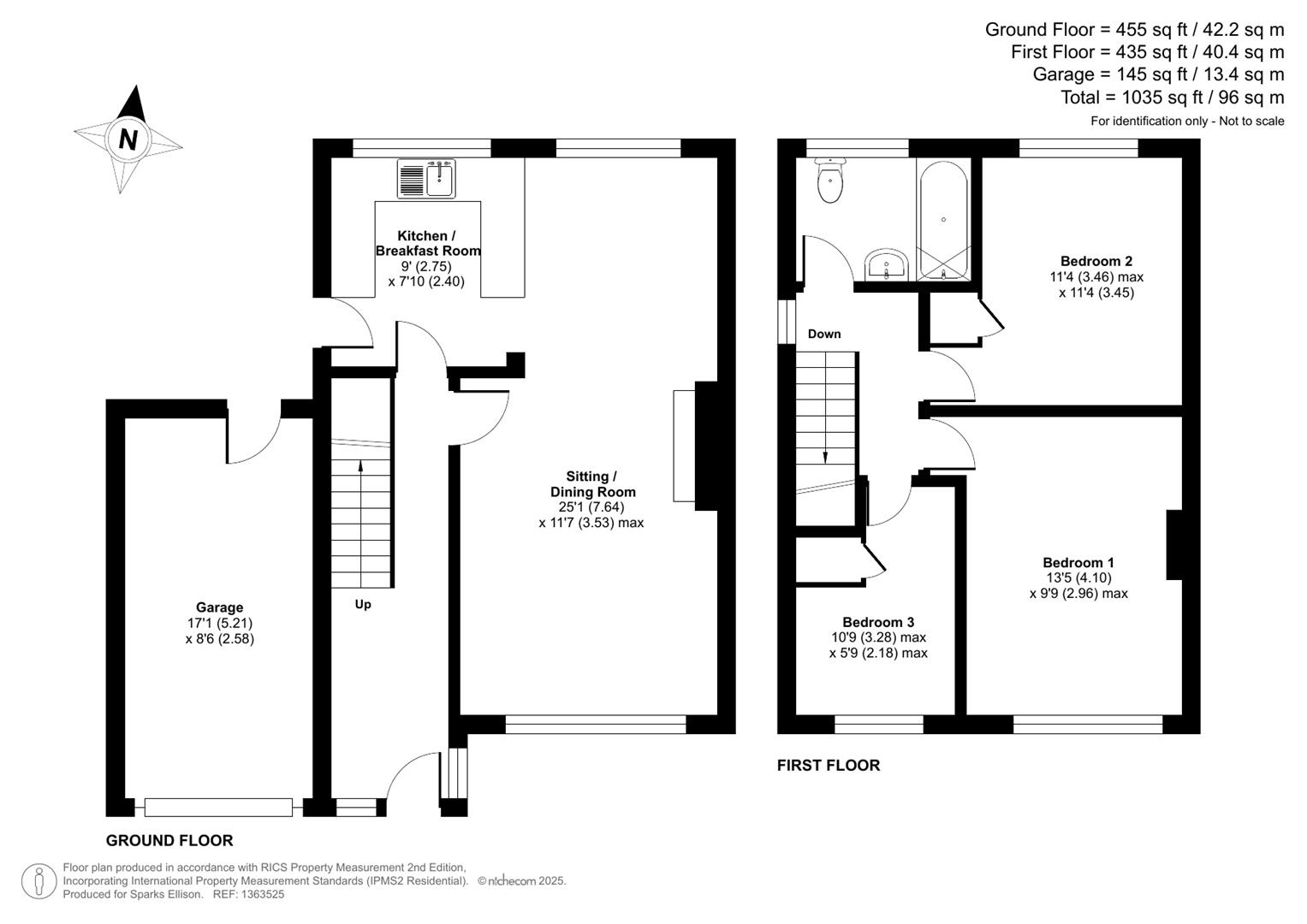
Floorplan

Bodycoats Road, Chandler’s Ford floorplan

Accommodation



GROUND FLOOR

Entrance Hall: Stairs to first floor.

Sitting/Dining Room: 25'1" x 11'7" (7.64m x 3.53m)

Kitchen/Breakfast Room: 9' x 7'10" (2.75m x 2.40m) Built in oven, built in electric hob, integrated fridge freezer, integrated dishwasher, breakfast bar.

FIRST FLOOR

Bedroom 1: 13'5" x 9'9" (4.10m x 2.96m)

Bedroom 2: 11'4" x 11'4" (3.46m x 3.45m) Built in wardrobe.

Bedroom 3: 10'9" x 5'9" (3.28m x 2.18m) Built in airing cupboard housing boiler.

Bathroom: Comprising bath with mixer tap and shower attachment, wash hand basin with drawer under, WC.

Outside



Front: Comprising block paved driveway providing off road parking.

Rear Garden: Measures approximately 56’ x 27’ and comprises paved patio area, outside tap, area laid to lawn, mature tree.

Garage: 17’1” x 8’6” (5.21m x 2.58) With up and over door, power and light.

Other Information



Tenure: Freehold

Approximate Age: 1960's

Approximate Area: 96sqm/1035sqft (Including garage)

Sellers Position: No forward chain

Heating: Gas central heating

Windows: UPVC double glazed windows

Infant/Junior School: Fryern Infant/Junior School

Secondary School: Toynbee Secondary School

Council Tax: Band C

Local Council: Eastleigh Borough Council - 02380 688000

Agents Note: If you have an offer accepted on a property we will need to, by law, conduct Anti Money Laundering Checks. There is a charge of £60 including vat for these checks regardless of the number of buyers involved.