Bodycoats Road, Chandler's Ford - Sparks Ellison
For Sale

Bodycoats Road

Chandler's Ford £375,000

Rooms

2 x bedrooms
1 x bathroom
1 x reception room

About the property

Located in the heart of Chandler's Ford on Bodycoats Road, this charming detached bungalow offers a delightful blend of comfort and convenience. With two well-proportioned bedrooms, this property is perfect for small families, couples, or those seeking a peaceful retirement retreat. The bungalow features a welcoming sitting room equipped with air conditioning, ensuring a pleasant atmosphere throughout the warmer months. The property has been thoughtfully updated, boasting a refitted shower room and cloakroom that enhance its modern appeal. One of the standout features of this home is the south-facing rear garden, which provides a sunny outdoor space perfect for gardening, relaxation, or enjoying al fresco dining. Additionally, the property benefits from off-street parking for two cars, offering convenience and peace of mind. Situated in a convenient central location, residents will find easy access to a variety of local shops, as well as bus services that connect to Southampton and Winchester. Essential amenities such as doctors and dentists are also within close proximity, making this an ideal location for everyday living. This bungalow presents a wonderful opportunity to enjoy a comfortable lifestyle in a sought-after area. With its appealing features and prime location, it is sure to attract interest from a range of buyers. Do not miss the chance to make this delightful property your new home.

Map

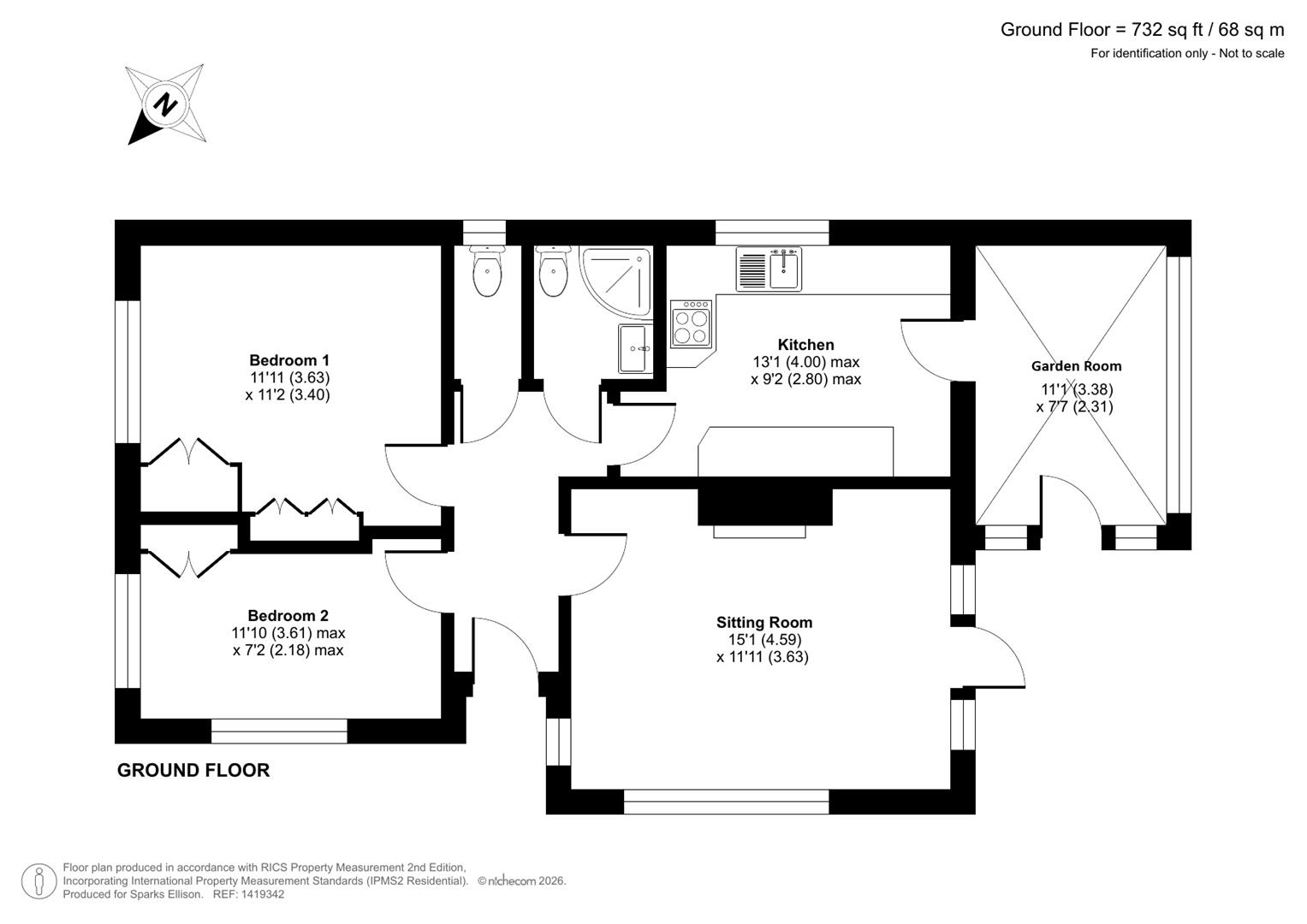
Floorplan

Bodycoats Road, Chandler’s Ford floorplan

Accommodation



Open porch: Front door to

Reception hall:

Sitting room: 15'1" x 11'11" (4.59m x 3.63m) A triple aspect room, fireplace with electric fire, air conditioning unit.

Kitchen: 13'1" x 9'2" (4.00m x 2.80m) Range of units, space and plumbing for appliances, boiler, door to

Garden Room: 11'1" x 7'7" (3.38m x 2.31m) Electric heater, door to rear garden.

Bedroom 1: 11'11" x 11'2" (3.63m x 3.40m) Fitted wardrobe and cupboard.

Bedroom 2: 11'10" x 7'2" (3.61m x 2.18m) Built in cupboard, dual aspect windows.

Shower room: Refitted modern suite comprising corner shower cubicle, wash basin, WC.

Cloakroom: Refitted WC.

Outside



Front: The property occupies an attractive corner plot. To the front are planted borders and lawn area leading around to the side with pathway to front door.

Rear garden: The rear garden enjoys a pleasant southerly aspect and has been landscaped with artificial grass areas and pergola. Flower and shrub borders, enclosed by fencing, timber summer house.

Parking: To the rear of the property are two off street parking spaces and electric car charging point.

Other Information



Tenure: Leasehold

Term of Lease: 999-year lease from 1953

Ground Rent: £10 per annum

Approximate Age: 1953

Approximate Area: 732 sq ft / 68 sq m

Sellers Position: Purchasing a property with no forward chain

Heating: Gas central heating

Windows: UPVC Double glazing

Loft Space: Boarded with light connected and ladder connected

Infant/Junior School: Fryern Infant School / Fryern Junior School

Secondary School: The Toynbee School

Local Council: Eastleigh Borough Council - 02380 688000

Council Tax: Band D

Agents Note: If you have an offer accepted on a property we will need to, by law, conduct Anti Money Laundering Checks. There is a charge of £60 including vat for these checks regardless of the number of buyers involved.