Bournemouth Road, Chandler's Ford - Sparks Ellison
Sold STC

Bournemouth Road

Chandler's Ford £299,950

Rooms

2 x bedrooms
2 x bathrooms
1 x reception room

About the property

This charming semi detached house on Bournemouth Road offers a delightful blend of modern living and classic character. Originally built c.1930, the property has been thoughtfully refurbished in 2025, ensuring a fresh and contemporary feel throughout. Boasting two bedrooms and two stylish bathrooms, this home is perfect for small families or professionals seeking a comfortable and convenient lifestyle. The bright sitting room provides a welcoming atmosphere, ideal for relaxation or entertaining guests. The large kitchen/dining room is a standout feature, equipped with built in appliances and ample space for dining, making it the perfect hub for family gatherings. Additionally, a utility room adds practicality to daily living. The property benefits from off road parking, a valuable asset in this central location. The enclosed garden offers a private outdoor space, perfect for enjoying the fresh air or hosting summer barbecues. With its proximity to the train station, commuting is made easy, allowing for quick access to nearby cities. Furthermore, the absence of a forward chain simplifies the buying process, making this property an attractive option for those looking to move swiftly.

Map

Floorplan

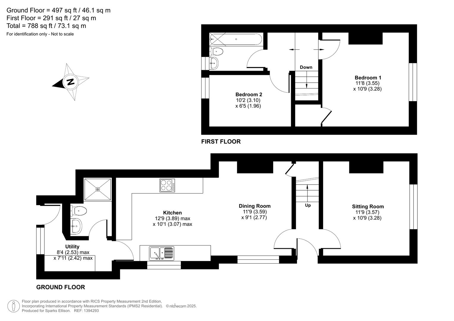
Bournemouth Road, Chandler’s Ford floorplan

Accommodation



GROUND FLOOR

Entrance Hall: Stairs to first floor.

Sitting Room: 11'9" x 10'9" (3.57m x 3.28m)

Kitchen/Dining Room: Kitchen area: 12'9" x 10'1" (3.89m x 3.07m) Dining area: 11'9" x 9'1" (3.59m x 2.77m) Built in oven, built in microwave, built in electric hob, fitted extractor hood, integrated fridge freezer, integrated dishwasher, integrated wine cooler, under stairs storage cupboard.

Utility Room: 8'4" x 7'11" (2.53m x 2.42m) Space and plumbing for washing machine, space for tumble dryer, wall mounted boiler, door to rear.

Shower Room: Comprising shower in cubicle, wash hand basin, WC.

FIRST FLOOR

Landing:

Bedroom 1: 11'8" x 10'9" (3.55m x 3.28m) Built in storage cupboard.

Bedroom 2: 10'2" x 6'5" (3.10m x 1.96m)

Bathroom: Comprising bath with shower over, wash hand basin, WC.

Outside



Front: Area laid to shingle, area laid to lawn.

Rear Garden: Measures approximately 42' x 14' and comprises area laid to lawn, area laid to shingle, outside tap, gate to driveway.

Parking: There is a driveway at the rear of the property providing off road parking.

Other Information



Tenure: Freehold

Approximate Age: 1930's

Approximate Area: 73.1sqm/788sqft

Sellers Position: No forward chain

Heating: Gas central heating

Windows: UPVC double glazed windows

Infant/Junior School: Chandler's Ford Infant/Merdon Junior School

Secondary School: Toynbee Secondary School

Council Tax: Band B

Local Council: Eastleigh Borough Council - 02380 688000

Agents Note: If you have an offer accepted on a property we will need to, by law, conduct Anti Money Laundering Checks. There is a charge of £60 including vat for these checks regardless of the number of buyers involved.