Broomhill Way, Boyatt Wood, Eastleigh - Sparks Ellison
For Sale

Broomhill Way

Boyatt Wood £435,000

Rooms

4 x bedrooms
2 x bathrooms
2 x reception rooms

About the property

Located in Boyatt Wood, Eastleigh, this Georgian style semi detached house on Broomhill Way offers spacious and practical family accommodation. Upstairs comprises four well-proportioned bedrooms and two modern bathrooms. Downstairs features a large entrance hall, sitting room, dining room, kitchen, and utility room, providing a well-balanced layout for family living. Externally, there is a private rear garden and a garage offering secure parking and additional storage. The property is situated in a quiet cul-de-sac with good access to local amenities, making it a strong option for families seeking space and convenience.

Map

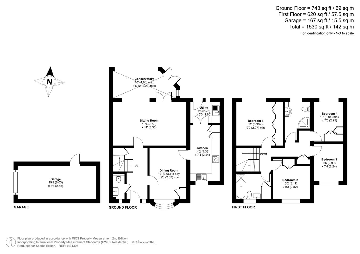
Floorplan

Broomhill Way, Boyatt Wood, Eastleigh floorplan

Accommodation



Ground Floor

Entrance hall:

Cloakroom: White suite comprising WC, wash basin with cupboard under.

Sitting room: 18'4" x 11'0" (5.59m x 3.35m) Electric fireplace and door conservatory.

Conservatory: 16'0" x 6'10" (4.88m x 2.09m) French doors onto rear garden.

Dining room: 13'0" x 9'3" (3.96m x 2.83m) Fitted cupboard accommodating boiler.

Kitchen: 14'2" x 7'4" (4.32m x 2.24m) Range of units comprising integrated microwave, gas cooker, electric oven and freestanding dishwasher to remain.

Utility: 7'5" x 5'3" (2.25m x 1.60m) Fitted units, sink, washing machine/tumble dryer and fridge freezer to stay, access to rear garden.

First floor

Landing Access to loft space

Bedroom 1: 11'0" x 9'9" (3.36m x 2.97m) Fitted wardrobes.

Bedroom 2: 10'2" x 9'3" (3.11m x 2.82m) Fitted wardrobe

Bedroom 3: 9'6" x 7'4" (2.90m x 2.24m)

Bedroom 4: 10'0" x 7'5" (3.04m x 2.25m)

Bathroom: Modern suite, bath with shower over, WC, wash basin with cupboard under.

Shower room: Walk in shower cubicle, WC, wash basin with cupboard under.

Outside



Front: Path to front door, lawn and range of shrubs and hedging.

Rear: Shingled area with path leading to raised garden area with lawn area, flowerbeds bordering and path leading to rear gate for access to driveway and garage.

Garage: 19'9" x 8'6" (6.03m x 2.58m)

Other Information



Tenure: Freehold

Approximate Age: 1980's

Approximate Area: 1530 sq ft / 142 sq m

Sellers Position: Looking for a forward purchase

Heating: Gas central heating

Windows: UPVC double glazing

Loft Space: Partially boarded with connected light and connected ladder.

Infant/Junior School: Shakespeare Infant School / Shakespeare Junior School

Secondary School: Crestwood Community School

Local Council: Eastleigh Borough Council - 02380 688000

Council Tax: Band C

Agents Note: If you have an offer accepted on a property we will need to, by law, conduct Anti Money Laundering Checks. There is a charge of £60 including vat for these checks regardless of the number of buyers involved.