Charnwood Crescent, Hiltingbury, Chandler's Ford - Sparks Ellison
For Sale

Charnwood Crescent

Chandler's Ford £450,000

Rooms

3 x bedrooms
1 x bathroom
1 x reception room

About the property

Located in the sought-after area of Charnwood Crescent, Hiltingbury, Chandler’s Ford, this well-presented three-bedroom semi-detached home offers practical and comfortable living, with a warm and welcoming feel throughout. Upstairs, there are three well-proportioned bedrooms and a conveniently located family bathroom. The ground floor comprises a spacious sitting room, a modern, well-equipped kitchen, and a cloakroom. To the rear, a conservatory provides additional living space with plenty of natural light and views over the garden. The property also benefits from parking for multiple vehicles, adding to its overall practicality. A solid option for those looking for a well-located family home.

Map

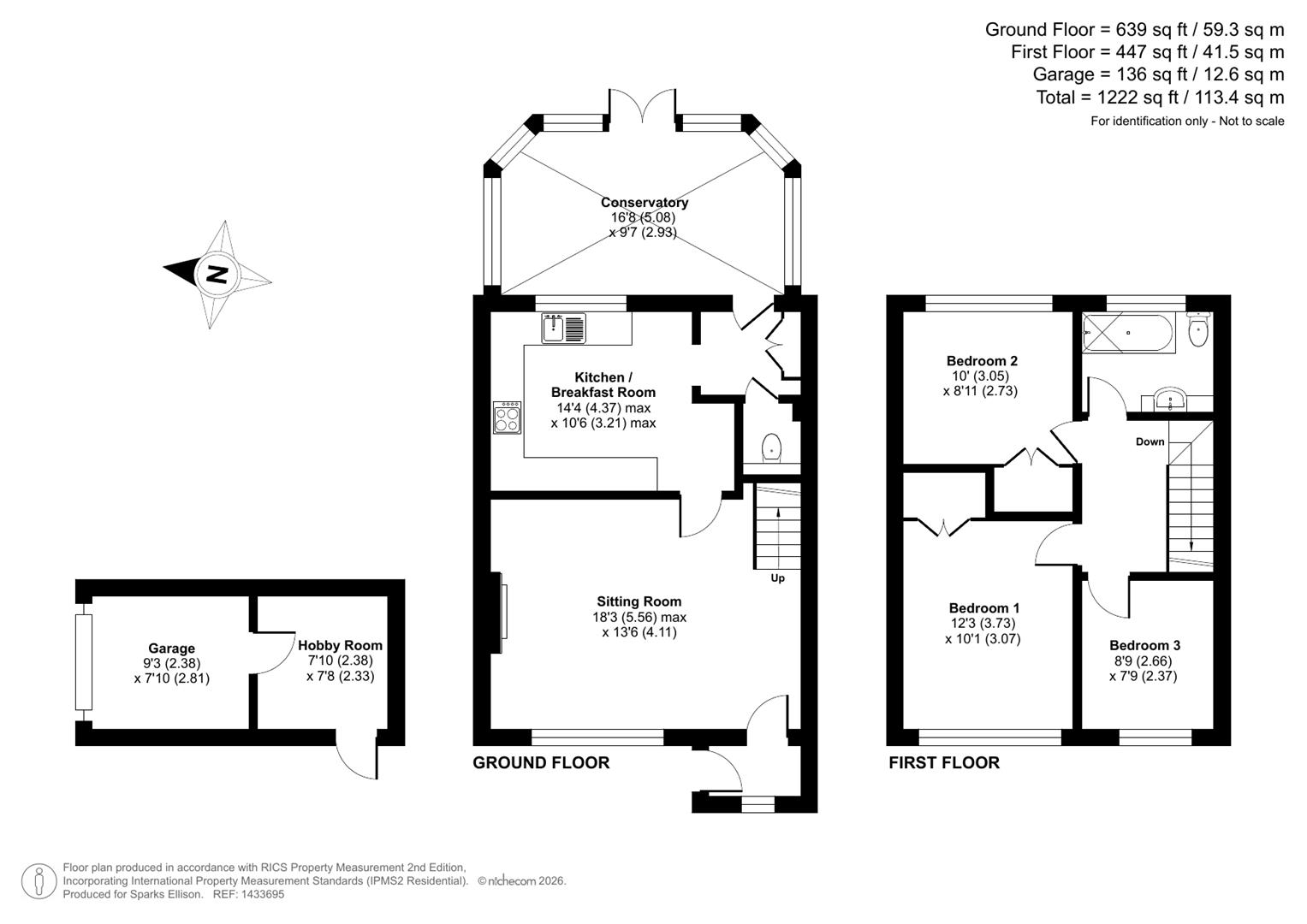
Floorplan

Charnwood Crescent, Hiltingbury, Chandler’s Ford floorplan

Accommodation



Ground floor

Porch: Space for shoes and coats.

Sitting room: 18'3" x 13'6" (5.56m x 4.11m) Electric fireplace and stairs to first floor with storage under.

Kitchen/breakfast room: 14'4" x 10'6" (4.37m x 3.21m) Range of units comprising gas hob, electric oven and space for washing machine and fridge freezer.

Conservatory: 16'8" x 9'7" (5.08m x 2.93m) Gas central heating, space for dining and French doors to the garden.

Rear porch: Built-in cupboard

Cloakroom: Comprising WC.

First floor

Bedroom 1: 12'3" x 10'1" (3.73m x 3.07m) Built-in wardrobe

Bedroom 2: 10'0" x 8'11" (3.05m x 2.73m) Built in wardrobe

Bedroom 3: 8'9" x 7'9" (2.66m x 2.37m)

Bathroom: Suite comprising bath with shower over, wash basin and WC.

Outside



Front: Shingle driveway for multiple vehicles and lawn area

Rear garden: Lawn area and path leading to side garage and patio at the rear

Garage: Storage space: 9'3" x 7'10" (2.38m x 2.81m) Hobby room: 7'10" x 7'8" (2.38m x 2.33m)
Half converted to hobby room and remaining storage space.

Other Information



Tenure: Freehold

Approximate Age: 1960

Approximate Area: 1222 sq ft / 113.4 sq m

Sellers Position: Offer made on property, provisionally accepted subject to sale of existing property

Heating: Gas central heating

Windows: UPVC double glazing

Loft Space: Partially boarded, connected light, connected ladder

Infant/Junior School: Hiltingbury Infant School / Hiltingbury Junior School

Secondary School: Thornden School

Local Council: Eastleigh Borough Council - 02380 688000

Council Tax: Band D

Agents Note: If you have an offer accepted on a property we will need to, by law, conduct Anti Money Laundering Checks. There is a charge of £60 including vat for these checks regardless of the number of buyers involved.