Common Close, Chandler's Ford, Eastleigh - Sparks Ellison
Sold STC

Common Close

Chandler's Ford £450,000

Rooms

4 x bedrooms
1 x bathroom
2 x reception rooms

About the property

Situated in the cul-de-sac of Common Close, this detached bungalow offers a wonderful opportunity for those looking to create their dream home. Built c.1957, the property boasts a generous plot of 0.16 acres, providing ample outdoor space for gardening or leisure activities. Inside, the bungalow features two spacious reception rooms, perfect for entertaining guests or enjoying family time. With four well-proportioned bedrooms, there is plenty of room for a growing family or for those who desire extra space for guests or a home office. Being located within the highly regarded Thornden School catchment area makes this home particularly appealing for families seeking quality education for their children. With no forward chain, this bungalow presents a seamless opportunity for prospective buyers to move in and start their renovation journey as the property would benefit from some general updating and modernisation.

Map

Floorplan

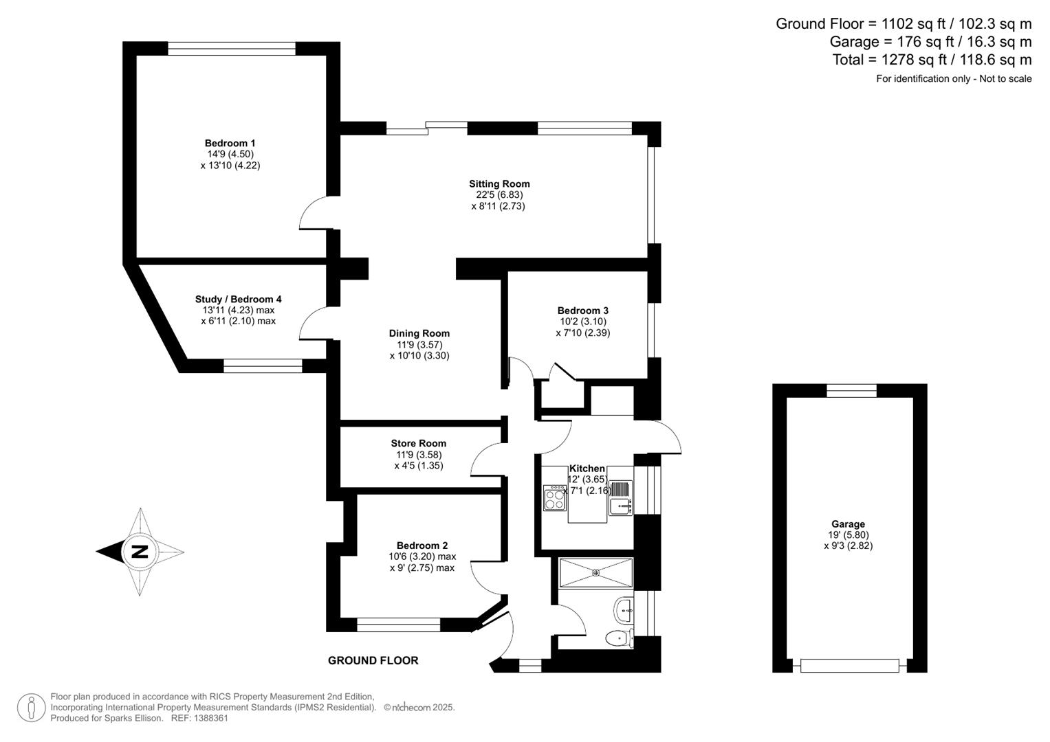
Common Close, Chandler’s Ford, Eastleigh floorplan

Accommodation



Entrance Hall:

Store Room: 11'9" x 4'5" (3.58m x 1.35m)

Kitchen: 12' x 7'1" (3.65m x 2.16m) Space for cooker, integrated extractor hood, space for fridge, space and plumbing for washing machine, space and plumbing for dishwasher, wall mounted boiler.

Dining Room: 11'9" x 10'10" (3.57m x 3.30m)

Sitting Room: 22'5" x 8'11" (6.83m x 2.73m)

Bedroom 1: 14'9" x 13'10" (4.50m x 4.22m)

Bedroom 2: 10'6" x 9' (3.20m x 2.75m)

Bedroom 3: 10'2" x 7'10" (3.10m x 2.39m)

Bedroom 4 / Study: 13'11" x 6'11" (4.23m x 2.10m)

Shower Room: Comprising double width shower cubicle, wash hand basin, WC.

Outside



Front: Block paved driveway providing off road parking, side access to rear garden.

Rear Garden: Area laid to lawn, variety of mature plants, bushes, tress and shrubs.

Garage: With up and over door.

Other Information



Tenure: Freehold

Approximate Age: 1954

Approximate Area: 118.6sqm/1278sqft (Including garage)

Sellers Position: No forward chain

Heating: Gas central heating

Windows: UPVC double glazed windows

Loft Space: Partially boarded with ladder and light connected

Infant/Junior School: Chandler's Ford Infant/Merdon Junior School

Secondary School: Thornden Secondary School

Council Tax: Band E

Local Council: Eastleigh Borough Council - 02380 688000

Agents Note: If you have an offer accepted on a property we will need to, by law, conduct Anti Money Laundering Checks. There is a charge of £60 including vat for these checks regardless of the number of buyers involved.