Conway Close, Valley Park, Chandler's Ford - Sparks Ellison
Sold STC

Conway Close

Chandler's Ford £239,950

Rooms

1 x bedroom
1 x bathroom
1 x reception room

About the property

Located in Conway Close, Valley Park, this charming end-terrace house presents an excellent opportunity for those looking to create their dream home. With one reception room, one bedroom, and one bathroom, this property is ideal for first-time buyers or those seeking a cosy retreat. The house boasts an attractive design, characteristic of the popular style, and is set in a sought after neighbourhood that offers a sense of community. One of the key advantages of this property is that it comes with no forward chain. While the house is in need of modernisation, this presents a wonderful chance for buyers to personalise the space to their taste and requirements. Additionally, the property includes a garage, providing valuable storage space or the possibility of off-road parking. In summary, this end-terrace house in Valley Park is a promising opportunity for anyone looking to invest in a property with potential. With its attractive features and convenient location, it is sure to appeal to a variety of buyers.

Map

Floorplan

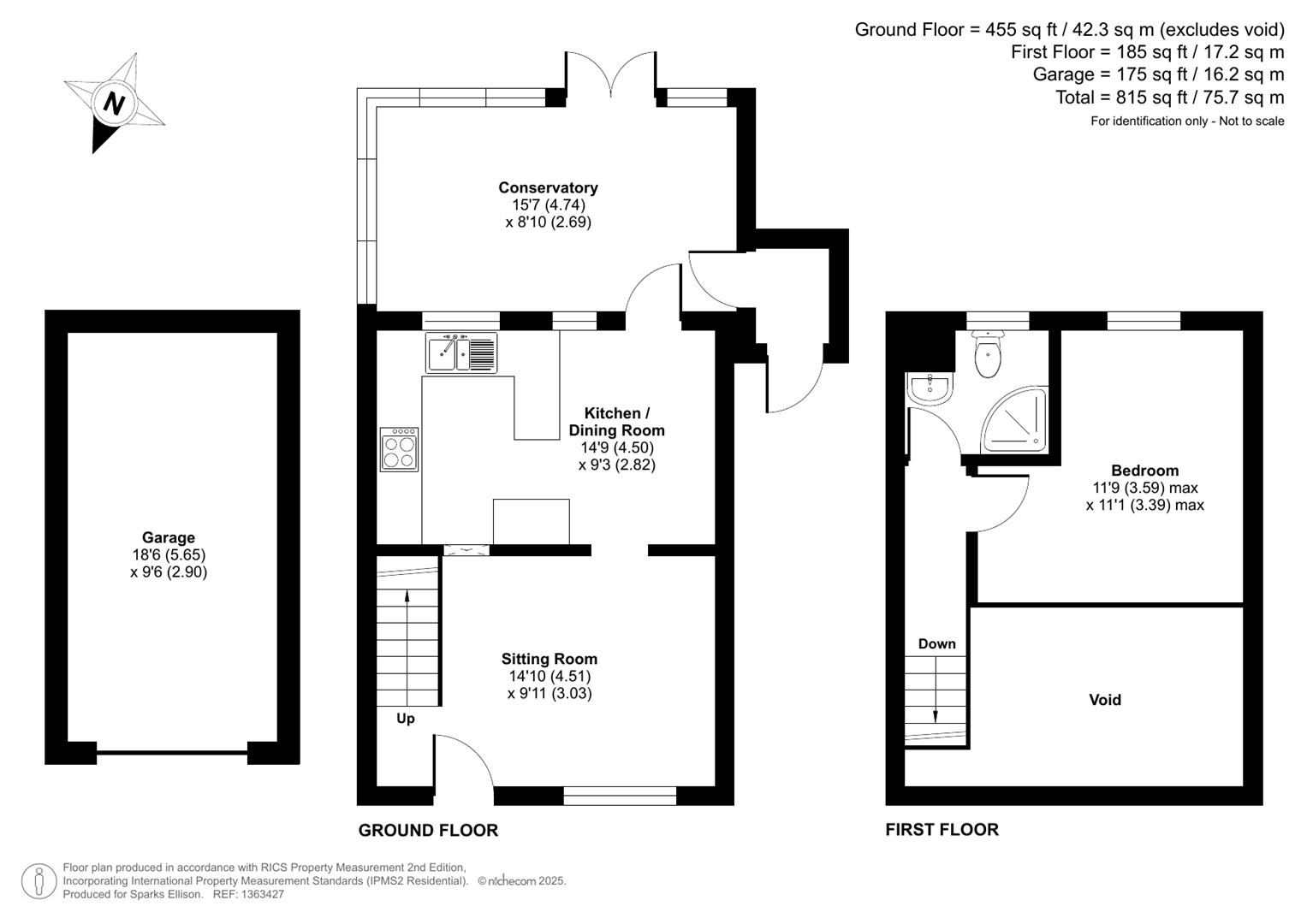
Conway Close, Valley Park, Chandler’s Ford floorplan

Accommodation



GROUND FLOOR

Sitting Room: 14'10" x 9'11" (4.51m x 3.03m) Stairs to first floor.

Kitchen/Breakfast Room: 14'9" x 9'3" (4.50m x 2.82m) Built in oven, built in electric hob, fitted extractor hood, space for fridge freezer, space and plumbing for washing machine.

Conservatory: 15'7" x 8'10" (4.74m x 2.69m) Door to storage cupboard.

FIRST FLOOR

Landing:

Bedroom: 11'9" x 11'1" (3.59m x 3.39m) A charming galleried room overlooking the sitting room.

Bathroom: A walk in bath, with seat, set up for disability use, wash hand basin, WC.

Outside



Front: Planted open plan garden. Outside storage cupboard housing boiler.

Rear Garden: Measures approximately 17’ x 17’ with area laid to shingle, variety of mature plants.

Garage: With up and over door.

Other Information



Tenure: Freehold

Approximate Age: 1984

Approximate Area: 75.5sqm/815sqft (Including garage)

Sellers Position: No forward chain

Heating: Gas central heating

WIndows: UPVC double glazed windows

Infant/Junior School: St. Francis Primary School

Secondary School: Toynbee Secondary School

Council Tax: Band B

Local Council: Eastleigh Borough Council - 02380 688000

Agents Note: If you have an offer accepted on a property we will need to, by law, conduct Anti Money Laundering Checks. There is a charge of £60 including vat for these checks regardless of the number of buyers involved.