Doncaster Road, Eastleigh - Sparks Ellison
Sold STC

Doncaster Road

Eastleigh £300,000

Rooms

3 x bedrooms
1 x bathroom
1 x reception room

About the property

A three bedroom end of terrace house situated close to Eastleigh Town Centre, which boasts an array of hight street shopping, along with commuter links including two mainline railway stations, Southampton Airport and access to the M3 and M27 motorways. The property itself would benefit from updating and modernisation whilst offering scope for extension subject to the relevant permissions. Externally there is off road parking to the front and along side of the property as well as a large rear garden that benefits from a garage at the far end with access from South Street. 120 Doncaster Road is offered for sale with no forward chain.

Map

Floorplan

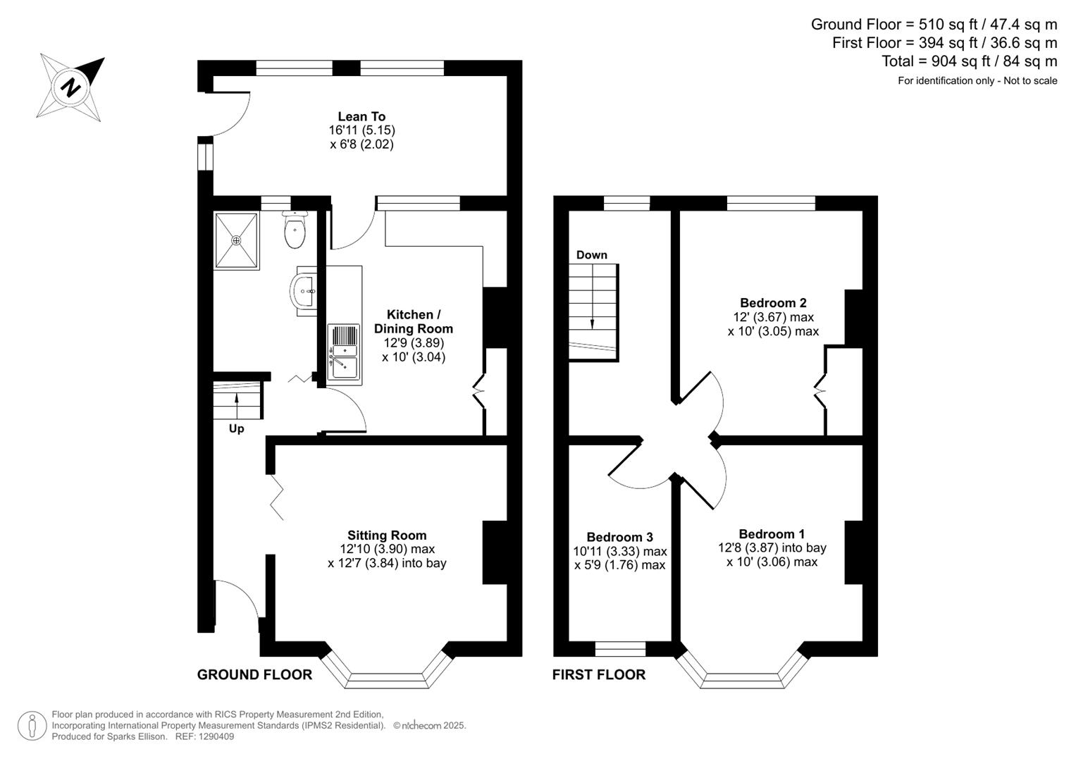
Doncaster Road, Eastleigh floorplan

Accommodation



GROUND FLOOR

Entrance Hall: Stairs to first floor.

Sitting Room: 12'10" x 12'7" (3.90m x 3.84)

Kitchen/Dining Room: 12'9" x 10' (3.89m x 3.04)

Lean to: 16'11" x 6;8" (5.15m x 2.02m) Wall mounted boiler.

Shower Room: Comprising shower in cubicle, wash hand basin, wc.

FIRST FLOOR

Landing:

Bedroom 1: 12'8" into bay x 10' max (3.87m x 3.06m)

Bedroom 2: 12' x 10' (3.67m x 3.05m)

Bedroom 3: 10'11 x 5'9" (3.33m x 1.76m)

Outside



Front: Block paved driveway providing off road parking, gate providing vehicular access to the side of property and rear garden.

Rear Garden: Measures approximately 58' x 25' and comprises area laid to lawn, block paved patio, detached garage with access via South Street.

Other Information



Tenure: Freehold

Approximate Age: 1900's

Approximate Area: 904sqft/84sqm

Sellers Position: Vacant possession

Heating: Gas central heating

Windows: UPVC double glazing except the conservatory, kitchen and bathroom.

Infant/Junior School: Cherbourg Primary School

Secondary School: Crestwood Community School

Council Tax: Band C

Local Council: Eastleigh Borough Council - 02380 688000

Agents Note: If you have an offer accepted on a property we will need to, by law, conduct Anti Money Laundering Checks. There is a charge of £50 + vat for these checks regardless of the number of buyers involved.