Highcliffe Drive, Eastleigh - Sparks Ellison
Sold STC

Highcliffe Drive

Eastleigh £595,000

Rooms

5 x bedrooms
2 x bathrooms
2 x reception rooms

About the property

Nestled in the corner of a quiet cul-de-sac location, this well presented five bedroom family home has an adjoining self contained two storey annexe which provides a large sitting room, kitchen, master bedroom and shower room. The main house benefits from spacious living accommodation throughout including a wonderful kitchen/dining/living space overlooking the rear garden, four great sized bedrooms with an additional fifth bedroom downstairs, a study and sizable lounge. Externally the property is very secluded and also benefits from plentiful parking and a double garage. The home would suit multi generational living although the annexe could quite easily be incorporated into the main house if required.

Map

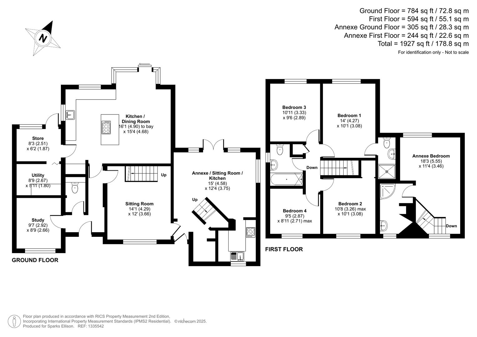
Floorplan

Highcliffe Drive, Eastleigh floorplan

Accommodation



GROUND FLOOR

Entrance Hall:

Cloakroom: Wc, wash basin.

Sitting Room: 14'1" x 12' (4.29m x 3.66m) Access to annexe and stairs to first floor.

Kitchen/Dining/Living space: 16'1" x 15'4" (4.90m x 4.68m) Modern kitchen comprising range of units, hob and electric oven, integrated dishwasher, integrated fridge., space for dining and sitting area.

Study: 9'7" x 8'9" (2.92m x 2.66m) Doors to garden and access to loft space.

Utility: 8'9" x 5'11" ) Space for washing machine and tumble dryer, boiler.

Store: 8'3" x 6'2" (2.51m x 1.87m)

FIRST FLOOR

Landing: Airing Cupboard.

Bedroom 1: 14' x 10'1" (4.27m x 3.08m) Access to loft space.

En-suite: Suite comprising shower cubicle, wc, wash basin and extractor fan.

Bedroom 2: 10'8" max x 10'1" (3.26m x 3.08m) Built in wardrobe.

Bedroom 3: 10'11" x 9'6" (3.33m x 2.89m)

Bedroom 4: 9'5" x 8'11" (2.87m x 2.71m)

Family Bathroom: Modern bathroom with ample storage, wc, wash basin, bath with shower over and extractor fan.

ANNEXE

GROUND FLOOR

Entrance Hall:

Kitchen/Sitting Room: 15' x 12'4" (4.58m x 3.75m) Sitting Area; Double doors to rear garden. Kitchen Area: Range of units, integrated fridge/freezer, electric hob with extractor hood over, oven.

FIRST FLOOR

Annexe Bedroom: 18'3" x 11'4" (5.55m x 3.46m) Access to loft space.

Shower Room: Shower cubicle, heated towel rail, wash hand basin with cupboard under, wc.

Bedroom 5:

Rear Garden: Approximately 67'8" x 44'5". Adjoining the property is a patio area which leads to area laid to lawn, there is side access on both sides of the property. There is access to wooded area and walkways via rear gate.

Other Information



Tenure: Freehold

Approximate Age: 1970's

Approximate Area: 1927sqft/178.8sqm (Including annexe)

Sellers Position: Looking for forward purchase

Heating: Gas central heating

Windows: UPVC double glazing

Infant/Junior School: Shakespeare Infant/Junior School

Secondary School: Crestwood Community School

Local Council: Eastleigh Borough Council - 02380 688000

Council Tax: Band E

Agents Note: If you have an offer accepted on a property we will need to, by law, conduct Anti Money Laundering Checks. There is a charge of £60 including vat for these checks regardless of the number of buyers involved.