Hillcrest Avenue, Chandler's Ford, Eastleigh - Sparks Ellison
Sold STC

Hillcrest Avenue

Chandler's Ford £400,000

Rooms

3 x bedrooms
2 x bathrooms
2 x reception rooms

About the property

Positioned fantastically, this delightful three bedroom detached bungalow is within a short walk to central Chandler's Ford and the long list of amenities which the arcade has to offer that includes Waitrose, the doctors surgery, pubs, multiple eateries and places of worship. Internally the property enjoys a large master bedroom with en-suite to the front, two more good sized bedrooms, a shower room and modern kitchen/dining/living space overlooking the rear garden. Externally the property sits on a plot of approximately 0.10 of an acre, has a front, side and rear garden, parking for one car and a single detached garage also. The home is a short commute from the M3 motorway Junction at the bottom of Oakmount Road and therefore highly convenient for commuters whether it be for business or leisure.

Map

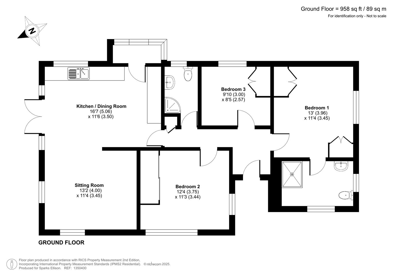
Floorplan

Hillcrest Avenue, Chandler’s Ford, Eastleigh floorplan

Accommodation



Entrance Porch

Hallway Cupboard and access to loft space.

Bedroom 1: 13' x 11'4" (3.96m x 3.45m) Built in double wardrobe and fitted wardrobe.

En-suite Dual aspect with large walk in shower, wash basin, WC, heated towel rail is both on central heating and independent.

Bedroom 2: 12'4" x 11'3" (3.75m x 3.44m) Fitted Wardrobe.

Bedroom 3: 9'10" x 8'5" (3.00m x 2.57m) Built in wardrobe.

Shower Room: Shower cubicle, wash basin with cupboard underneath, WC and extractor fan.

Kitchen/Dining Room: 16'7" x 11'6" (5.06m x 3.50m) Modern kitchen consisting of a range of units with integrated electric oven & induction hob, extractor over head, space for fridge freezer, space for washing machine, space for dishwasher, dining space, open entrance into living room, double doors leading to covered decking.

Utility Area: Space for washing machine and tumble dryer.

Sitting Room: 13'2" x 11'4" (4.00m x 3.45m) Electric stand alone fire.

Outside



Front and Side Gardens: A lovely mixture of plants and small trees throughout both sections.

Rear Garden: Measuring approximately 21' x 43'. Adjoining the property is a covered decking area with steps up to area laid to lawn, outside tap. There are two gates here with one leading to the driveway beyond the garden and the other linking back around to the front door.

Garage: Single detached unit.

Driveway: Parking for one car.

Other Information



Tenure: Freehold

Approximate Age: 1952

Approximate Area: 89sqm/958sqft

Sellers Position: Have found property to purchase

Heating: Gas central heating

Windows: UPVC double glazed windows

Loft Space: Partially boarded with ladder & light connected

Infant/Junior School: Fryern Infant/Junior School

Secondary School: Toynbee Secondary School

Council Tax: Band D

Local Council: Eastleigh Borough Council - 02380 688000

Agents Note: If you have an offer accepted on a property we will need to, by law, conduct Anti Money Laundering Checks. There is a charge of £60 including vat for these checks regardless of the number of buyers involved.