Hook Road, Ampfield - Sparks Ellison

Rooms

4 x bedrooms
3 x bathrooms
3 x reception rooms

About the property

Located on the picturesque Hook Road opposite woodland in Ampfield, this splendid detached house presents an exceptional opportunity for families seeking a beautiful and spacious home. Set on a magnificent 0.3-acre plot, the property boasts a stunning 152' rear garden, basking in a delightful southerly aspect, perfect for outdoor enjoyment and entertaining. Upon entering, you are greeted by a generous hallway that leads to three well-appointed reception rooms, offering ample flexibility for various living arrangements or additional bedrooms. The wonderful sitting room, with its views of the rear garden, creates a serene atmosphere for relaxation and family gatherings. The first floor features three spacious bedrooms, complemented by en-suites to the main and a Jack & Jill arrangement , ensuring comfort and privacy for family members or guests. The thoughtful design of this home caters to modern living, providing both space and functionality. For those with vehicles, the property includes a driveway that accommodates several cars, adding to the convenience of this family residence. The location is particularly appealing, with catchment areas for the highly regarded Hiltingbury and Thornden schools, making it an ideal choice for families with children. Additionally, the centre of Chandlers Ford is easily accessible, along with the M3 motorway, ensuring excellent transport links for commuting to Romsey, Winchester and Southampton. In summary, this beautiful family home in Ampfield offers a perfect blend of space, comfort, and convenience, making it a must-see for anyone looking to settle in this desirable area.

Map

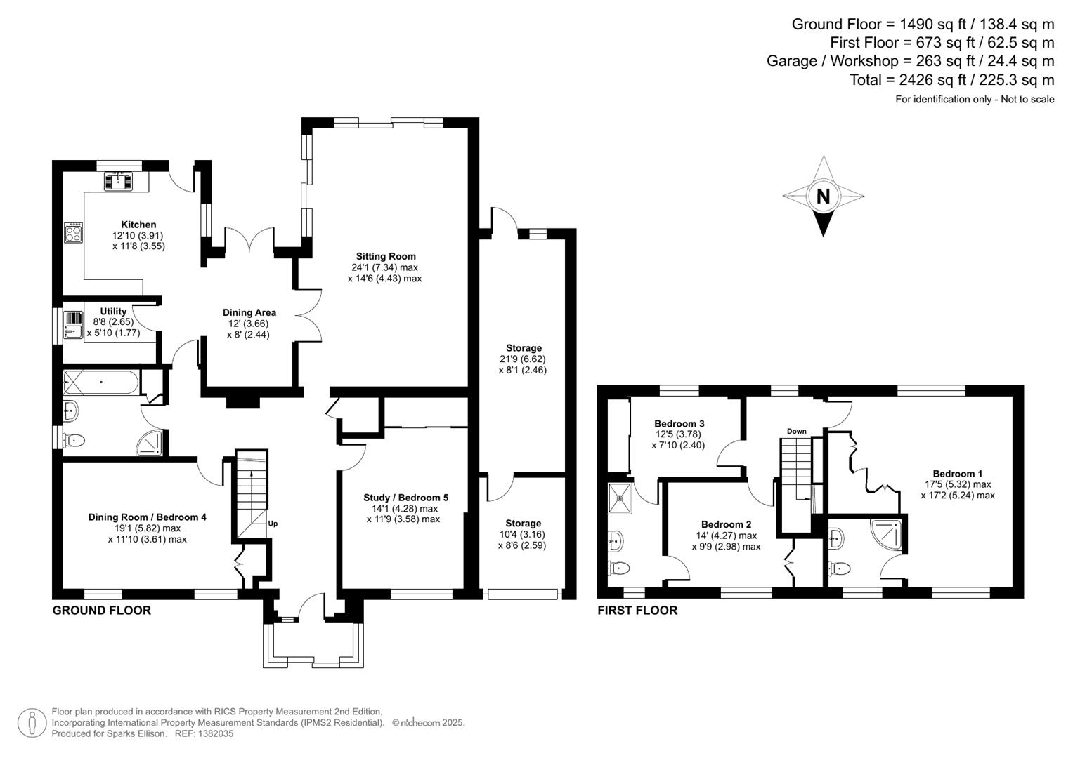
Floorplan

Hook Road, Ampfield floorplan

Accommodation



Ground Floor:

Enclosed Entrance Porch: Front door to:-

Reception Hall: Stairs to first floor, wooden floor, storage/coats cupboard.

Sitting Room: 24'1" x 14'6" (7.34m x 4.43m) A delightful dual aspect room with two sets of patio doors on the corner leading to the rear garden, contemporary style gas fireplace.

Dining Area: 12' x 8' (3.66m x 2.44m) Wooden floor, patio doors to rear garden, open plan to:-

Kitchen: 12'10" x 11'8" (3.91m x 3.55m) Range of fitted units with wooden worktops, electric oven, induction hob with extractor hood over, space and plumbing for appliances, wooden floor, door to rear garden.

Utility Room: 8'8" x 5'10" (2.65m x 1.77m) Range of units, sink unit, space and plumbing for appliances, boiler.

Dining Room/Bedroom 4: 19'1" x 11'10" (5.82m x 3.61m) Fitted cupboard/wardrobe, Amtico floor.

Study/Bedroom 5: 14'1" x 11'9" (4.28m x 3.58m) Fitted cupboard/wardrobe.

Bathroom: Suite comprising bath with mixer tap and shower attachment. separate corner shower cubicle with glazed screen, wash basin, WC, tiled floor, airing cupboard.

First Floor

Landing:

Bedroom 1: 17'5" x 17'2" (5.32m x 5.24m) Range of modern fitted wardrobes.

En-Suite Shower Room: Re-fitted modern suite comprising corner shower cubicle with glazed screen, wash basin, WC, storage cupboards, tiled floor and walls, under floor heating.

Bedroom 2: 14' x 9'9" (4.27m x 2.98m) Built in wardrobe.

Bedroom 3: 12'5" x 7'10" (3.78m x 2.40m) Built in wardrobe.

En-Suite Shower Room: Re-fitted modern suite comprising walk in shower area with glazed screen, wash basin, WC, storage cupboards, tiled walls and floor, under floor heating. This is a Jack and Jill arrangement between bedrooms two and three.

Outside

The total plot extends to approximately 0.3 of an acre and represents a particularly outstanding feature of the property.

Front: To the front of the property is a generous gravel drive affording parking for several vehicles surrounded by well stocked borders and enclosed by fencing, side gate and access to rear garden.

Rear Garden: The wonderful rear garden measures approximately 152' and enjoys a pleasant southerly aspect. Adjoining the rear of the property is a full width patio leading onto a generous lawned area surrounded by well stocked mature borders and enclosed by hedging and fencing, 2 garden sheds.

Storage Room: To the side of the property are two storage rooms split by a stud wall that could be made into one.

Other Information



Tenure: Freehold

Approximate Age: 1960's

Approximate Area: 2426sqft/225.3sqm (Including garage and workshop)

Sellers Poistion: Found property to purchase

Heating: Gas central heating, electric to en-suite floors

Windows: UPVC double glazing

Infant/Junior School: Hiltingbury Infant/Junior School

Secondary School: Thornden Secondary School

Local Council: Eastleigh Borough Council - 02380 688000

Council Tax: Band G

Agents Note: If you have an offer accepted on a property we will need to, by law, conduct Anti Money Laundering Checks. There is a charge of £20 + vat per person for these checks.