Hursley Road
Chandler's Ford £205,000
Rooms
About the property
Situated on Hursley Road in Chandler's Ford, this spacious two-bedroom flat offers a delightful living experience. The property is presented in excellent condition throughout and one of the standout features of this flat is the brand new en-suite bathroom, which adds a touch of luxury and convenience to the master bedroom. The additional bathroom is also presented in great condition. This home boasts generous living areas, providing ample room for relaxation and entertaining. Externally the property benefits from one allocated parking space as well as plenty of visitor bays. Chandler's Ford is known for its friendly community and excellent amenities, including shops, schools, and parks, all within easy reach. This property is perfect for those seeking a modern and comfortable lifestyle in a desirable location.
Map
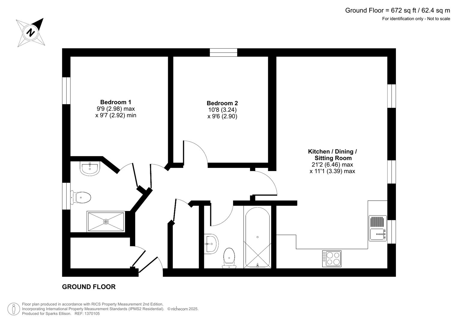
Floorplan


ACCOMDATION
Communal Entrance Hall:
Entrance Hall: Airing cupboard accommodating boiler and large storage cupboard.
Kitchen/Dining/Sitting Room: 21'2" x 11'1" (6.46m x 3.39m) Range of units including integrated electric hob, electric oven and dishwasher. Space for fridge/freezer.
Bedroom 1: 9'9" x 9'7" (2.98m x 2.92m)
En-Suite: Recently fitted modern suite comprising WC, wash basin with cupboard under, walk in shower cubicle with glass door/screen.
Bedroom 2: 10'8" x 9'6" (3.24m x 2.90m)
Bathroom: White suite comprising WC, wash basin with cupboard under and bath with shower over with glass screen.
Outside
Parking: Allocated parking for one car and multiple visitor bays.
Other Information
Tenure: Leasehold
Lease Length: 155 years from 1st October 2006
Ground Rent: £225 per annum payable in two instalments in January and July
Maintenance Charge £1839.67 per annum
Approximate Age 2006
Approximate Area 672sqft/62.4sqm
Heating Gas central heating
Windows UPVC double glazing
Infant/Junior School: Chandler's Ford Infant School/Merdon Junior School
Secondary School: Toynbee Secondary School
Local Council: Eastleigh Borough Council 02380 688000
Council Tax: Band C
Agents Note: If you have an offer accepted on a property we will need to, by law, conduct Anti Money Laundering Checks. There is a charge of £60 including vat for these checks regardless of the number of buyers involved.