Hursley Road, Chandler's Ford, Eastleigh - Sparks Ellison
For Sale

Hursley Road

Chandler's Ford £625,000

Rooms

4 x bedrooms
1 x bathroom
2 x reception rooms

About the property

Situated in a highly desirable and sought after location known as the Parish of Ampfield is this delightful four bedroom detached family home. The property provides a useful study area to the ground floor together with a sitting room overlooking the rear garden, cloakroom, kitchen and dining room. On the first floor are four generous bedrooms together with the bathroom and shower room. The gardens are well established and to the rear measure approximately 56‘ x 46‘ providing a pleasant westerly aspect. 346 Hursley Road is conveniently placed for woodland walks in Hook woods and Hocombe Mead and Flexford nature reserve with the Hiltingbury farmhouse Gastro pub being within walking distance together with shops at the end of Ashdown Road and Hiltingbury Road. School catchments include the popular Hiltingbury and Thornden schools and easy excess can be gained to Junction 12 of the M3.

Map

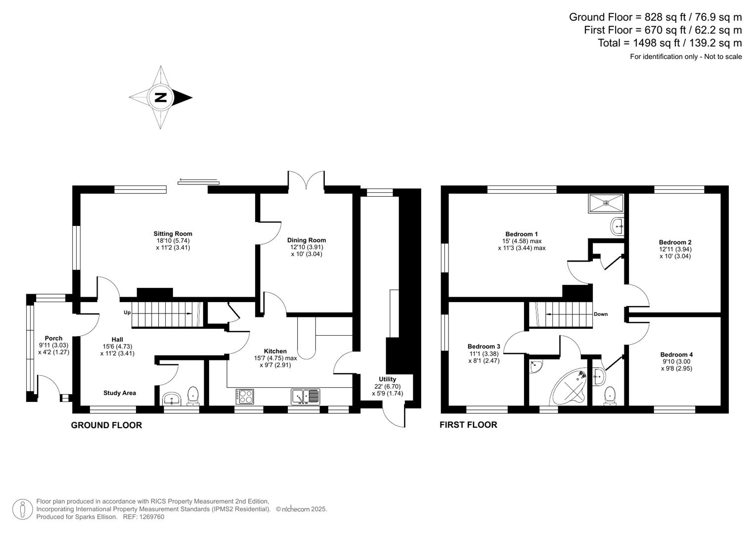
Floorplan

Hursley Road, Chandler’s Ford, Eastleigh floorplan

Accommodation



GROUND FLOOR

Entrance Porch: 9'11" x 4'2" (3.02m X 1.27m)

Reception Hall: 15'6" x 11'2" (4.72m x 3.40m) Stairs to first floor with cupboard under.

Open Plan Study Area:

Cloakroom: Wash basin, W.C.

Sitting Room: 8'10" x 11'2" (2.69m x 3.40m) Patio doors to rear garden, fireplace with inset gas fire.

Dining Room: 12'10" x 10' (3.91m x 3.05m) Double doors to garden.

Kitchen/Breakfast Room: 15'7" x 9'7" (4.75m x 2.92m) Range of units incorporating breakfast bar, double electric oven, electric hob, microwave, dishwasher and fridge freezer.

Lobby/Utility Space: 22' x 5'9" (6.71m x 1.75m) Plumbing for appliances.

FIRST FLOOR

Landing: Airing cupboard housing boiler.

Bedroom 1: 15' x 11'3" (4.57m x 3.43m) Dual aspect windows, wet room style shower area and wash basin with tiled walls and floor.

Bedroom 2: 12'11" x 10' (3.94m x 3.05m) Wardrobe to remain.

Bedroom 3: 11'1" x 8'1" (3.38m x 2.46m)

Bedroom 4: 9'10" x 9'8" (3.00m x 2.95m) Dual aspect windows.

Bathroom: Suite comprising corner bath, glazed screen and shower unit over, wash basin with cupboard under.

Cloakroom: Wash basin, W.C.

Outside



Front: To the front of the property is a driveway that leads to the garage with side gate to rear garden. The remainder of the front garden has a lawned area with well stocked borders, side gate to rear garden.

Rear Garden: Approximately 56‘ x 46‘ enjoying a pleasant westerly aspect. The garden has been landscaped to provide patio areas to include a covered area ideal for outside entertaining, lawned areas surrounded by well stocked flower and shrub borders, enclosed by fencing.

Garage: Light and power.

Other Information



Tenure: Freehold

Approximate Age: Circa 1970's

Approximate Area: 1498sqft/139.2sqm

Sellers Position: Looking for forward purchase

Heating: Gas central heating

Windows: UPVC double glazed windows

Loft Space: Partially boarded with ladder and light connected

Infant/Junior School: Hiltingbury Infant/Junior School

Secondary School: Thornden Secondary School

Council Tax: Band F

Local Council: Test Valley Borough Council - 01264 368000

Agents Note: If you have an offer accepted on a property we will need to, by law, conduct Anti Money Laundering Checks. There is a charge of £60 including vat for these checks regardless of the number of buyers involved.