Hurst Close, Valley Park, Chandler's Ford - Sparks Ellison
Sold STC

Hurst Close

Chandlers Ford £350,000

Rooms

3 x bedrooms
1 x bathroom
1 x reception room

About the property

A modern three bedroom semi-detached family home situated in a popular cul-de-sac location towards the southern end of Chandler's Ford. The property comprises of three good size bedrooms and a family bathroom on the first floor with sitting/dining room, re-fitted kitchen and conservatory on the ground floor. There is an attractive westerly facing 44' x 35' rear garden, off road parking and a garage and the property is offered for sale with no forward chain.

Map

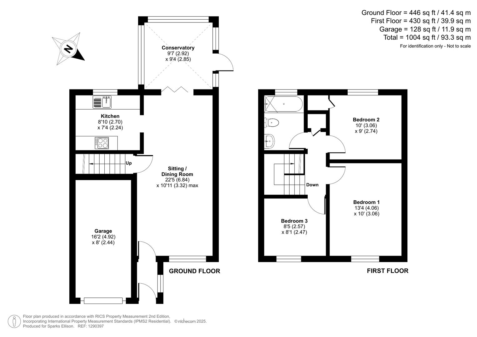
Floorplan

Hurst Close, Valley Park, Chandler’s Ford floorplan

Accommodation



GROUND FLOOR

Entrance Vestibule:

Sitting/Dining Room: 22'5" x 10'11" (6.84m x 3.32m)

Conservatory: 9'7" x 9'4" (2.92m x 2.85m)

Kitchen: 8'10" x 7'4" (2.70m x 2.24m) Range of white units, space and point for cooker, space and plumbing for washing machine, space and plumbing for slimline dishwasher, space for fridge freezer, cupboard housing boiler.

FIRST FLOOR

Landing: Access to loft space, built in airing cupboard housing hot water tank.

Bedroom 1: 13'4" x 10' (4.06m x 3.06m)

Bedroom 2: 10' x 9' (3.06m x 2.74m) Built in wardrobe.

Bedroom 3: 8'5" x 8'1" (2.57m x 2.47m)

Bathroom: Comprising bath with electric shower over, wash hand basin, WC.

Outside



Front: Area laid to lawn, side pedestrian access to rear garden, driveway providing off road parking.

Rear Garden: Measures approximately 44' x 35' with a pleasant westerly aspect, paved patio area, area laid to lawn, area laid to timber deck, flower and shrub borders, garden shed, enclosure for animals.

Garage: 16'6" x 8' (5.03m x 2.44m) With up and over door, power and light.

Other Information



Tenure: Freehold

Approximate Age: 1980

Approximate Area: 93.3sqm/1004sqft (Including garage)

Sellers Position: No forward chain.

Heating: Gas central heating which is Hive compatible.

Windows: UPVC double glazed windows

Loft Space: Partially boarded with ladder & light connected

Infant/Junior School: St. Francis Primary School

Secondary School: Toynbee Secondary School

Council Tax: Band D

Local Council: Test Valley Borough Council 01264 368000

Agents Note: If you have an offer accepted on a property we will need to, by law, conduct Anti Money Laundering Checks. There is a charge of £60 including vat for these checks regardless of the number of buyers involved.