Hut Farm Place, Chandler's Ford - Sparks Ellison
Sold STC

Hut Farm Place

Chandler's Ford £365,000

Rooms

3 x bedrooms
2 x bathrooms
1 x reception room

About the property

Welcome to this exceptionally spacious three-storey townhouse located in Hut Farm Place, Chandler's Ford. This impressive property boasts three generously sized double bedrooms, providing ample space for family living or accommodating guests. The master bedroom features a dressing room and en-suite bathroom, ensuring privacy and convenience, while a further well-appointed bathroom serves the other bedrooms. On the ground floor, you will find a welcoming sitting room, perfect for relaxation and entertaining, alongside a fully fitted kitchen that is both functional and stylish. This space is ideal for those who enjoy cooking and socialising, making it the heart of the home. The property also benefits from a driveway and two additional allocated parking spaces, a rare find in such a convenient location. Residents will appreciate the ease of access to local shops, as well as bus services that connect to Southampton and Winchester, making commuting and daily errands a breeze. This townhouse is not only a very comfortable family home but also offers a lifestyle of convenience, with everything you need within walking distance.

Map

Floorplan

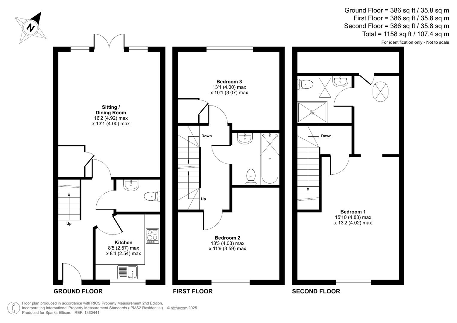
Hut Farm Place, Chandler’s Ford floorplan

Accommodation



Ground Floor

Reception Hall: Stairs to first floor.

Sitting Room: 16'2" max x 13'1" max (4.92m x 4.00m)

Kitchen: 8'5"max x 8'4"max (2.57m x 2.54m) Range of fitted units, built in electric double oven and electric hob with extractor hood over, integrated fridge/freezer, dishwasher and washing machine, boiler.

Cloakroom: Wash basin, wc.

First Floor

Landing: Stairs to 2nd floor.

Bedroom 2: 13'3"max x 11'9"max (4.03m x 3.59m)

Bedroom 3: 13'1"max x 10'1"max (4.00m x 3.07m) Airing cupboard

Bathroom: Suite comprising bath with mixer tap and shower attachment, wash basin, WC.

Second Floor

Landing:

Bedroom 1: 15'10"max x 13'2"max (4.83m x 4.02m)

Dressing Room: Ample space for wardrobes, access to eaves storage.

En-Suite Shower Room: Suite comprising shower cubicle, wash basin, WC, tiled floor.

Outside



Front: To the front of the property is parking for one vehicle with pathway to front door.

Rear Garden: Approximately 36' x 14'. Adjoining the house is a patio leading onto a lawned area enclosed by fencing, rear pedestrian access to further parking.

Parking: There are two further allocated parking spaces at the end of the terrace.

Other Information



Tenure: Freehold

Approximate Age: 2011

Approximate Area: 1158sqft/107.4sqm

Sellers Position: Looking for forward purchase

Heating: Gas central heating

Windows: UPVC double glazing

Infant/Junior School: Fryern Infant/Junior School

Secondary School: Toynbee Secondary School

Local Council: Eastleigh Borough Council - 02380 688000

Council Tax: Band C

Agents Note: If you have an offer accepted on a property we will need to, by law, conduct Anti Money Laundering Checks. There is a charge of £60 including vat for these checks regardless of the number of buyers involved.