Justinian Close, Chandler's Ford - Sparks Ellison
Sold STC

Justinian Close

Chandler's Ford £250,000

Rooms

2 x bedrooms
1 x bathroom
1 x reception room

About the property

Located in the highly sought-after Peverells Wood area of Chandler's Ford, this beautifully presented first-floor maisonette offers a delightful blend of space, comfort and convenience. Built in 1972, the property boasts spacious and well-proportioned rooms, making it an ideal home for individuals or small families. The maisonette features two inviting bedrooms and a well-appointed bathroom. The reception room provides a welcoming space for relaxation and entertaining. One of the standout features of this property is the magnificent private garden, measuring approximately 61' x 20'. This outdoor space is perfect for gardening enthusiasts or those who simply wish to enjoy the fresh air in a tranquil setting. Additionally, the property includes parking for one vehicle and a garage, providing ample storage and convenience. Situated within walking distance to the centre of Chandler's Ford, residents will benefit from easy access to local amenities, shops, and transport links. This maisonette is not just a home; it is a lifestyle choice in a vibrant community. In summary, this first-floor maisonette in Justinian Close is a rare find, combining spacious living with a beautiful garden in a prime location. It is an excellent opportunity for those looking to settle in a desirable area of Chandler's Ford.

Map

Floorplan

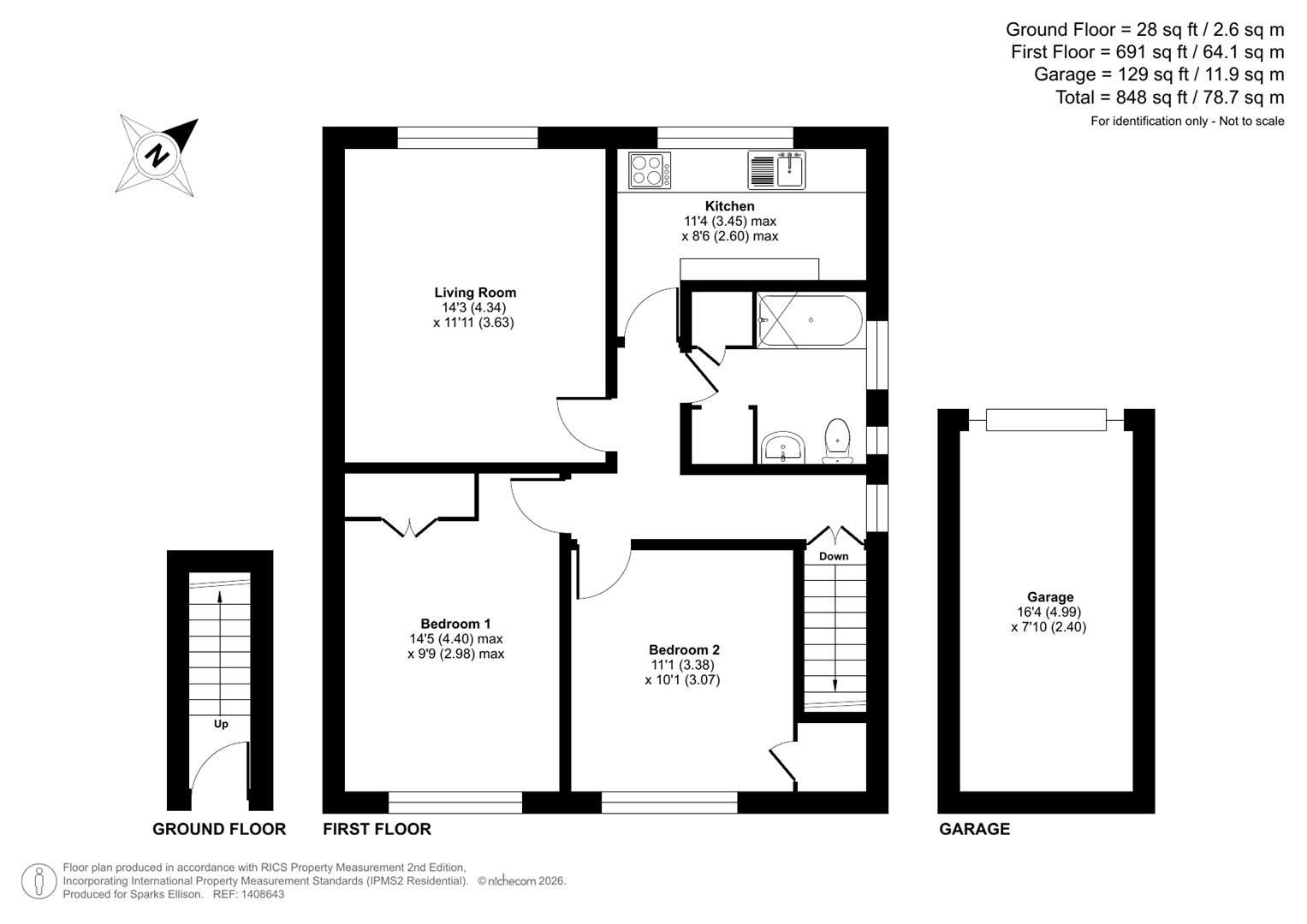
Justinian Close, Chandler’s Ford floorplan

Accommodation



Entrance hall: Stairs up to the property.

Hallway: Access to loft space. Storage cupboard.

Living Room: 14'3" x 11'11" (4.34m x 3.63m)

Kitchen: 11'4" x 8'6" (3.455m x 2.60m) Range of units, integral electric cooker and hob, space for washer drier, space for fridge-freezer, sink unit, breakfast bar and serving hatch.

Bedroom 1: 14'5" x 9'9" (4.40m x 2.98m) Built in wardrobe

Bedroom 2: 11'1" x 10'1" (3.38m x 3.07m) Built in wardrobe

Bathroom: Suite comprising of bath with shower overhead, wash basin, WC, heated towel rail and an airing cupboard.

Outside



Rear Garden: Measuring approximately 61'5" x 20'8" the private garden is west facing and consists of a patio area, laid to lawn.

Garage: 16'4" x 7'10" (4.99m x 2.40m) Single garage with electric door and parking space in front.

Other Information



Tenure: Leasehold with share of Freehold

Term of Lease: 999 Years from 1972

Ground Rent: £25 per annum

Approximate Age: 1972

Approximate Area: 848 sq ft / 78.7 sq m

Sellers Position: Looking for a forward purchase

Heating: Electric night storage heaters

Windows: UPVC Double glazing

Loft Space: Partially boarded

Infant/Junior School: Scantabout Primary School

Secondary School: Thornden School

Local Council: Eastleigh Borough Council - 02380 688000

Council Tax: Band B

Agents Note: If you have an offer accepted on a property we will need to, by law, conduct Anti Money Laundering Checks. There is a charge of £60 including vat for these checks regardless of the number of buyers involved.