Kingsway, Chandler's Ford, Eastleigh - Sparks Ellison
Sold STC

Kingsway

Chandler's Ford £500,000

Rooms

3 x bedrooms
2 x bathrooms
2 x reception rooms

About the property

Located on lower Kingsway, Chandler's Ford, this stunning 1930s semi-detached family home has been thoughtfully extended and refurbished by its current owners, creating a perfect blend of classic charm and modern living. The property boasts an impressive open plan kitchen and dining area, ideal for family gatherings and entertaining guests. The snug and sitting room provide additional spaces for relaxation, ensuring that every member of the family has their own retreat. This delightful home features three spacious double bedrooms, along with a useful study and bathroom on the first floor, making it perfect for families of all sizes. The ground floor shower room also adds convenience to daily routines, catering to the needs of a busy household. Outside, you will find a large garage, providing ample storage or potential for conversion or a workshop. The wonderful 69' south-west facing garden is a true highlight, offering a serene outdoor space for children to play, gardening enthusiasts to thrive, or simply for enjoying the sunshine. Situated in a convenient central location, this property is within walking distance to local shops, schools, and bus services, making it an ideal choice for families seeking both comfort and accessibility. This home is not just a property; it is a lifestyle waiting to be embraced. Don’t miss the opportunity to make this exquisite house your new family home.

Map

Floorplan

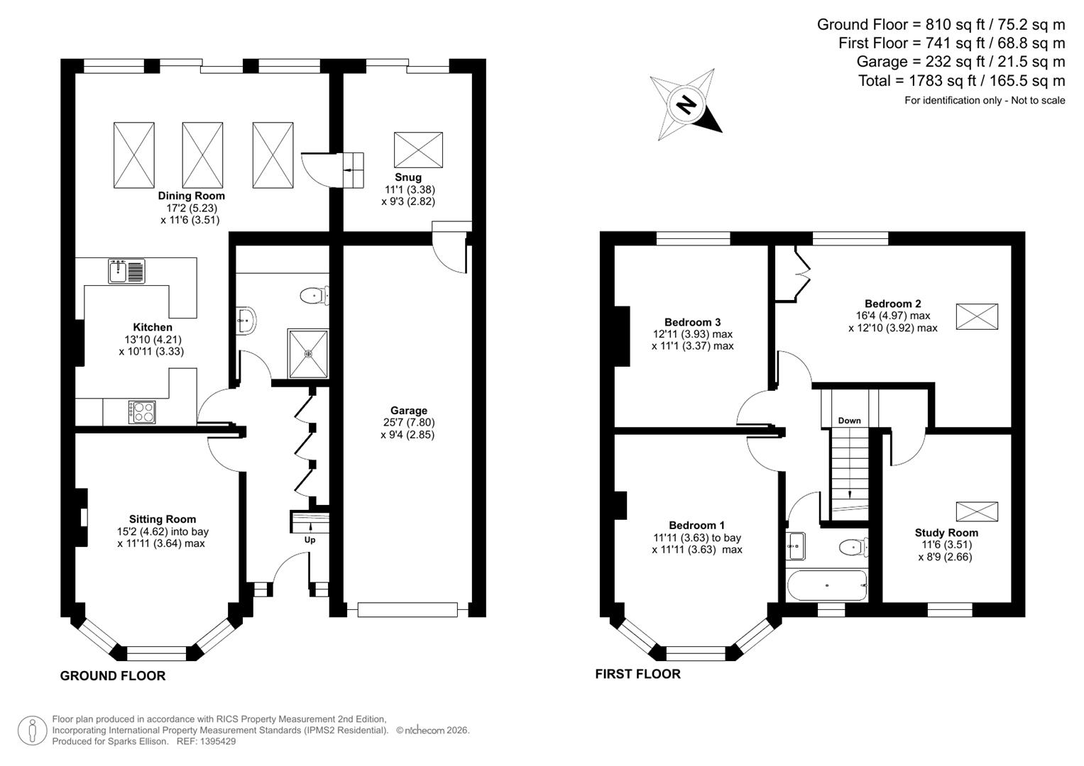
Kingsway, Chandler’s Ford, Eastleigh floorplan

Accommodation



Ground Floor

Open Entrance Porch: Front door to:-

Reception Hall: Stairs to first floor with useful storage cupboards under, wooden floor.

Sitting Room: 15'2" x 11'11" (4.62m x 3.64m) Bay window ,chimney breast with inset log burner.

Kitchen/Dining Room: 13'10" x 10'11" (4.21m x 3.33m) The kitchen area has been fitted with a range of units with quartz worktops over, electric oven, electric oven/microwave, induction hob with extractor hood over, integrated dishwasher. Open plan to the dining room.

Dining Room: 17'2" x 11'6" (5.23m x 3.51m) The dining room affords plenty of space for table and chairs and sofa with part vaulted ceiling and three Velux windows and sliding double doors to rear garden, wooden flooring throughout.

Snug: 11'1" x 9'3" (3.38m x 2.82m) Sliding door to rear garden, wooden floor, skylight, door to garage.

Shower Room/Utility Room: Suite comprising corner shower cubicle with glazed screen, wash basin, WC, work surface area with integrated fridge and freezer under and space and plumbing for washing machine.

First Floor

Landing: Hatch to loft space.

Bedroom 1: 11'11" x 11'11" (3.63m x 3.63m) Bay window, fitted wardrobes.

Bedroom 2: 16'4" x 12'10" (4.97m x 3.92m) Airing cupboard.

Bedroom 3: 12'11" x 11'1" (3.93m x 2.82m)

Study Room: 11'6" x 8'9" (3.51m x 2.66m) Please note restricted ceiling height

Bathroom: Suite comprising bath with mixer tap, wash basin with cupboard under, WC.

Outside



Front: To the front of the property is a gravel driveway affording parking for two vehicles with adjacent lawned area, enclosed by hedging.

Rear Garden: The rear garden is a particularly attractive feature of the property measuring approximately 69' x 30'9" enjoying a pleasant south westerly aspect. Adjoining the property is a patio with glass balustrade and steps down to a lawned area surrounded by well stocked borders enclosed by fencing, feature brick built pizza oven, garden shed.

Garage: 25'7" x 9'4" (7.80m x 2.85m) Electric door to the front, light and power, boiler, door to snug.

Other Information



Tenure: Freehold

Approximate Age: 1939

Approximate Area: 1783sqft/165.5sqm (Including garage)

Sellers Position: Looking for forward purchase. Possibility of no forward chain

Heating: Gas central heating

Windows: UPVC, Wooden Velux windows, Aluminium rear doors to garden

Loft Space: Partially boarded with ladder and light connected

Infant/Junior School: Chandlers Ford infant School / Merdon Junior School

Secondary School: Toynbee Secondary School

Local Council: Eastleigh Borough Council 02380 688000

Council Tax: Band D

Agents Notes: If you have an offer accepted on a property we will need to, by law, conduct Anti Money Laundering Checks. There is a charge of £60 including vat for these checks regardless of the number of buyers involved.