Merrick Way, Valley Park, Chandler's Ford - Sparks Ellison
Sold STC

Merrick Way

Chandler's Ford £675,000

Rooms

5 x bedrooms
3 x bathrooms
3 x reception rooms

About the property

An excellent opportunity to purchase this well-presented and extended five-bedroom detached family home, situated in a quiet cul-de-sac within the highly sought-after Hiltingbury and Thornden School catchments. The property offers spacious and versatile accommodation including a large sitting room, a recently upgraded open-plan kitchen/dining room fitted with smart Neff appliances, soft water system, boiling tap, and food waste disposer. A light-filled conservatory with a solid covered roof provides a comfortable year-round family space. A study, utility room, and cloakroom add to the practical layout. Upstairs, the principal bedroom and a spacious additional bedroom both benefit from en-suite bathrooms, with three further bedrooms served by a stylish family bathroom. The upstairs extension, completed a few years ago, has added excellent space and flexibility. Quality finishes throughout include an oak and glass staircase. The landscaped rear garden is perfect for outdoor living, featuring Indian sandstone paving, wooden decking, and a charming pergola. A garage and driveway parking complete this impressive family home.

Map

Floorplan

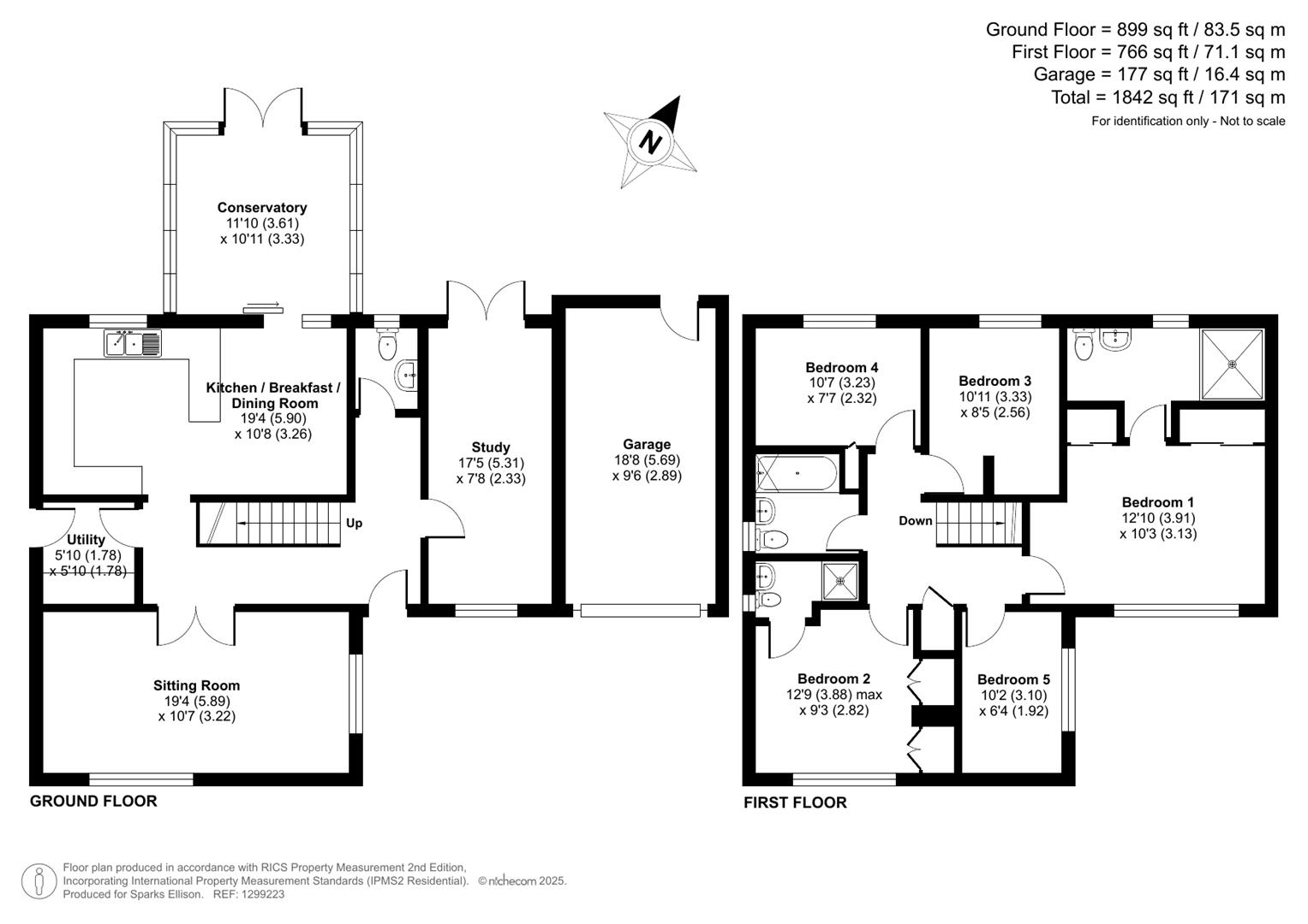
Merrick Way, Valley Park, Chandler’s Ford floorplan


ACCOMODATION:

Ground Floor:

Entrance Hall: Stairs to first floor, tiled floor.

Cloakroom: Comprising wash hand basin, WC, tiled floor.

Sitting Room: 19'4" x 10'7" (5.89m x 3.22m)

Kitchen/Breakfast/Dining Room: 19'4" x 10'8" (5.90m x 3.26m) Re-fitted kitchen comprising built-in double oven, built-in gas hob, fitted extractor hood, integrated dishwasher, space for fridge freezer, space for table and chairs, breakfast bar, tiled floor.

Utility Room: 5'10" x 5'10" (1.78m x 1.78m) Re-fitted utility room with space and plumbing for dishwasher, space for tumble dryer.

Conservatory: 11'10" x 10'11" (3.61m x 3.33m) Tiled floor.

Study: 17'5" x 7'8" (5.31m x 2.33m)

First Floor:

Landing: Access to loft space, built in airing cupboard.

Bedroom 1: 12'10" x 10'3" (3.91m x 3.13m) Built in wardrobes.

En Suite: Comprising open-ended shower enclosure, wash hand basin, WC, tiled floor, tiled walls.

Bedroom 2: 12'9" max x 9'3" (3.88m x 2.82m)

En Suite: Comprising shower in cubicle, wash hand basin, WC, tiled walls, tiled floor.

Bedroom 3: 10'11" x 8'5" (3.33m x 2.56m)

Bedroom 4: 10'7" x 7'7" (3.23m x 2.32m)

Bedroom 5: 10'2" x 6'4" (3.10m x 1.92m)

Bathroom: Comprising bath with mixer tap and shower attachment, wash hand basin, WC, tiled walls.

OUTSIDE:

Front: Area laid to pebbles with variety of plants, side pedestrian access to rear garden, pathway to front door, block paved driveway providing off-road parking.

Rear Garden: Measures approximately 48‘ x 32‘ Max and comprises paved patio area, area laid to shingle, area laid to timber deck with wooden pergola over, raised planted bed, outside tap.

Garage: 18’8” x 9’6” with electric door, power and light, door to garden.

Other Information



Tenure: Freehold

Approximate Age: 1980's

Approximate Area: 1842sqft/171sqm (Including garage)

Sellers Position: Found property to purchase

Heating: Gas central heating

Windows: UPVC double glazing

Loft Space: Partially boarded with ladder and light connected

Infant/Junior School: Hiltingbury Infant/Junior School and St Francis Primary School

Secondary School: Thornden Secondary School

Local Council: Test Valley Borough Council - 01264 368000

Council Tax: band F

Agents Note: If you have an offer accepted on a property we will need to, by law, conduct Anti Money Laundering Checks. There is a charge of £60 including vat for these checks regardless of the number of buyers involved.