Monmouth Close, Valley Park, Chandler's Ford - Sparks Ellison
Sold STC

Monmouth Close

Chandler's Ford £335,000

Rooms

2 x bedrooms
1 x bathroom
1 x reception room

About the property

A modern two bedroom semi detached bungalow situated in a sought-after cul-de-sac within the Valley Park development. The location offers excellent local amenities including a Tesco Local, health practices, public house, schools, Knightwood Leisure Centre, and numerous woodland walks.
The bungalow provides well proportioned accommodation, enhanced by a conservatory, and benefits from an enclosed rear garden, driveway parking, and a garage. The property is offered for sale with no onward chain.

Map

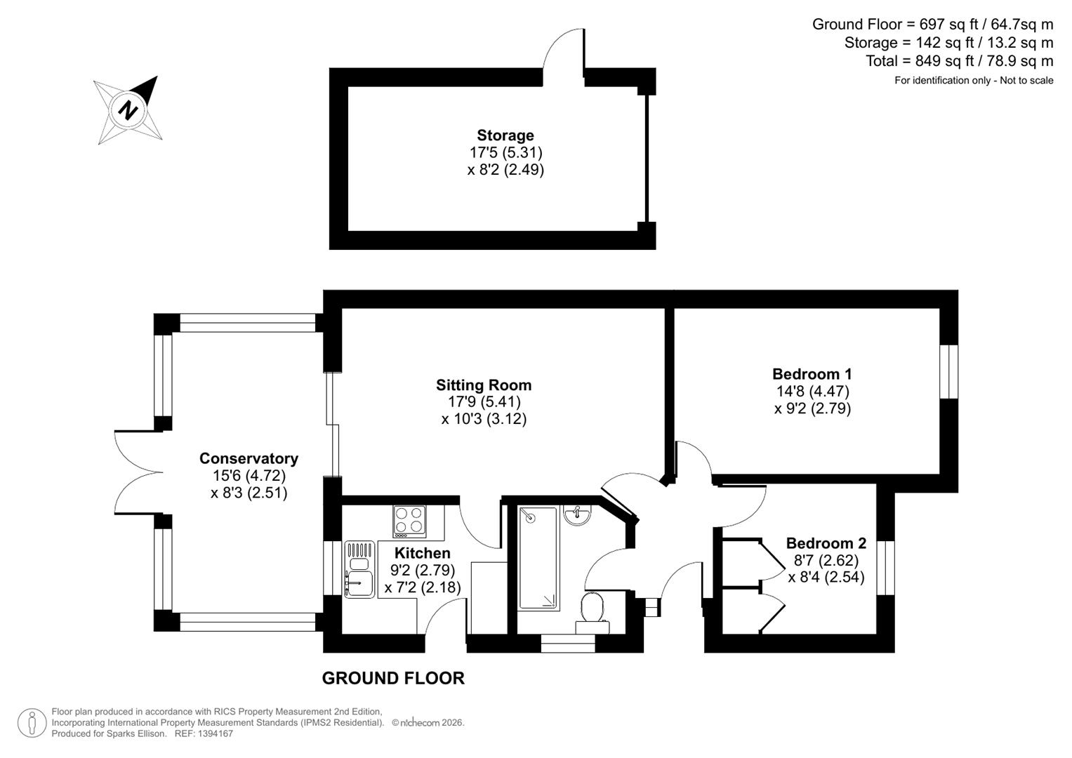
Floorplan

Monmouth Close, Valley Park, Chandler’s Ford floorplan

Accommodation



Entrance Hall:

Sitting Room: 17'8" x 10'3" (5.38m x 3.12m)

Kitchen: 9'1" x 7'2" (2.77m x 2.18m) Built in oven, built in gas hob, fitted extractor hood, space and plumbing for washing machine, space for side-by-side fridge freezer.

Conservatory: 15' x 7'11" (4.57m x 2.41m)

Bedroom 1: 14'8" x 9'1" (4.47m x 2.77m)

Bedroom 2: 8'4" x 7' (2.54m x 2.13m) Built-in cupboard, built-in wardrobe.

Bathroom: 7'2" x 5'9" (2.18m x 1.75m) Comprising walk in shower, wash hand basin, wc.

Outside



Front: Area laid to lawn, planted beds, pathway to front door and side access to rear garden.

Rear Garden: Measures approximately 22’ x 12’ and comprises paved patio area, area laid to lawn, planted beds, outside tap.

Garage: 17'5" x 8'2" (5.31m x 2.49m) With up and over door, power and light. There is also a driveway providing off-road parking.

Other Information



Tenure: Freehold

Approximate Age: 1980's

Approximate Area: 65.7sqm/707sqft

Sellers Position: No forward chain

Heating: Gas central heating

Windows: UPVC double glazing

Infant/Junior School: St Francis Primary School

Secondary School: Toynbee Secondary School

Local Council: Eastleigh Borough Council - 02380 688000

Council Tax: Band C

Agents Note: If you have an offer accepted on a property we will need to, by law, conduct Anti Money Laundering Checks. There is a charge of £60 including vat for these checks regardless of the number of buyers involved.