Oakmount Road, Chandler's Ford - Sparks Ellison
Sold STC

Oakmount Road

Chandler's Ford £375,000

Rooms

3 x bedrooms
1 x bathroom
2 x reception rooms

About the property

Located in the heart of Chandler's Ford on Oakmount Road is this charming end-terrace house. With two spacious reception rooms, this property is perfect for both relaxation and entertaining. The generous kitchen and dining area provide an inviting space for family meals and gatherings, while the adjacent flexible room can be adapted to suit your needs, whether as a study or playroom. The home boasts three well-proportioned bedrooms, ensuring ample space for family or guests. The modern shower room is designed for both functionality and style, catering to the needs of a busy household. One of the standout features of this property is the impressive rear garden, measuring approximately 46' 6" x 34' 6". This outdoor space is perfect for gardening enthusiasts or for children to play, and it also offers rear vehicular access to a driveway that accommodates parking for up to three cars, a rare find in such a central location. Situated conveniently close to Fryern Arcade, Waitrose, and various bus routes, this home is ideally placed for easy access to local amenities.

Map

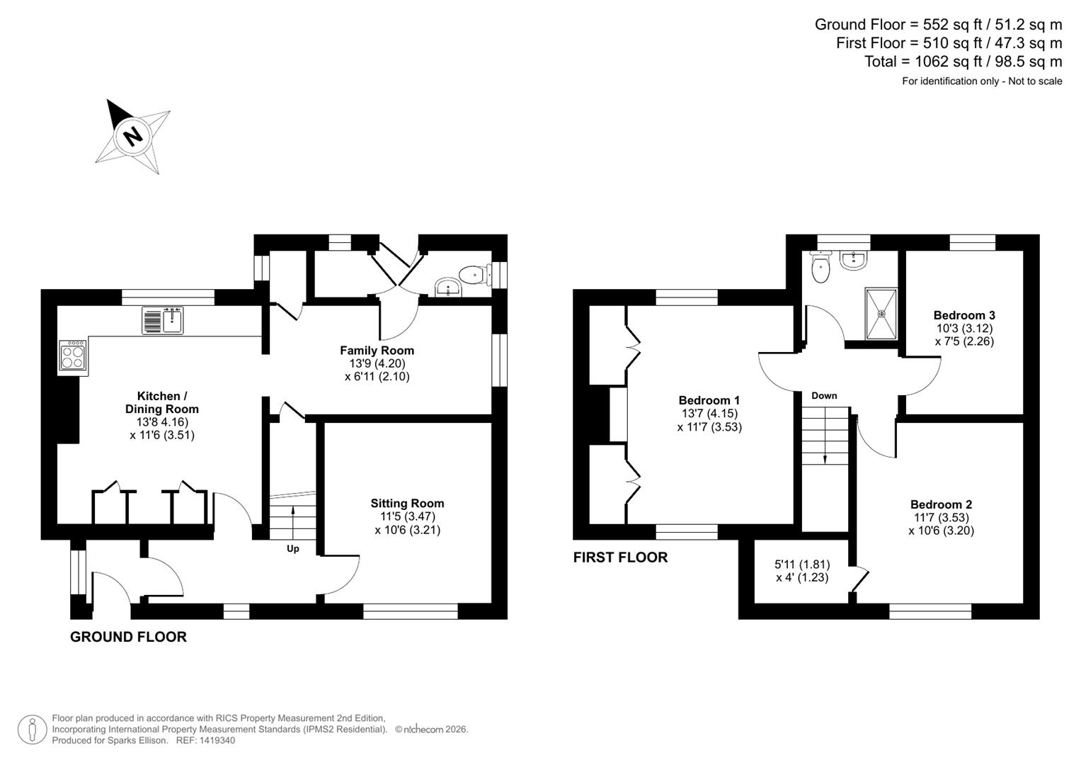
Floorplan

Oakmount Road, Chandler’s Ford floorplan

Accommodation



Ground Floor

Entrance porch

Reception hall: Stairs to the first floor

Sitting room: 11'5" x 10'6" (3.47m x 3.21m) Log burner.

Kitchen/dining room: 13'8" x 11'6" (4.16m x 3.51m) Comprehensive range of shaker style units, electric oven, gas hob with extractor hood over, integrated dishwasher, space for American style fridge freezer, space for table and chairs.

Family room: 13'9" x 6'11" (4.20m x 2.10m) Utility cupboard, under stairs cupboard.

Lobby: Storage cupboard

Cloakroom: Wash basin, WC

First Floor

Landing: Hatched loft space

Bedroom 1: 13'7" x 11'7" (4.15m x 3.53m) Two built in wardrobes, dual aspect windows.

Bedroom 2: 11'7" x 10'6" (3.53m x 3.20m) Built in wardrobe which measures: 5'11" x 4'0" (1.81m x 1.23m)

Bedroom 3: 10'3" x 7'5" (3.12m x 2.26m)

Shower room: Suite comprising corner shower cubicle with glazed screen, wash basin, WC, tiled walls and floor.

Outside



Front: To the front of the property is a lawned area enclosed by hedging with planted borders and pathway to front door, side access to rear garden.

Rear: An attractive feature of the property measuring approximately 46’6” x 34’6”. Adjoining the property is a full width patio leading onto a lawned area, gravelled area enclosed by hedging and fencing. A pedestrian gate leads to the driveway where rear vehicular access provides off street parking for three vehicles. Brick built shed.
Cabin: A particularly useful room with space for a number of uses, light and power, double doors to the garden.

Other Information



Tenure: Freehold

Approximate Age: 1950

Approximate Area: 1062 sq ft / 98.5 sq m

Sellers Position: No forward chain

Heating: Gas central heating

Windows: UPVC Double glazing

Loft Space: Partially boarded, ladder connected and light connected

Infant/Junior School: Fryern Infant School / Fryern Junior School

Secondary School: The Toynbee School

Local Council: Eastleigh Borough Council - 02380 688000

Council Tax: Band C

Agents Note: If you have an offer accepted on a property we will need to, by law, conduct Anti Money Laundering Checks. There is a charge of £60 including vat for these checks regardless of the number of buyers involved.