Osborne Drive, Chandler's Ford - Sparks Ellison
For Sale

Osborne Drive

Chandler's Ford £350,000

Rooms

3 x bedrooms
1 x bathroom
1 x reception room

About the property

Situated in the popular cul de sac of Osborne Drive, this end terraced house offers a delightful blend of comfort and convenience. Built in 1973, the property boasts three well-proportioned bedrooms, making it an ideal home for families or those seeking extra space. The house features a well-appointed bathroom and a practical kitchen, ensuring all your daily needs are met. There is a driveway providing off road parking, along with a garage for additional storage or parking options. The property is conveniently located with access to the town centre, as well as the M3 and M27 motorways. Importantly, this property is offered with no forward chain, allowing for a smooth and efficient purchase process. Whether you are a first-time buyer or looking to downsize, this terraced house presents an excellent opportunity to secure a lovely home in a sought-after area.
(Please note the property is currently leasehold shared ownership but the seller intends to staircase to 100% to enable freehold ownership upon completion).

Map

Floorplan

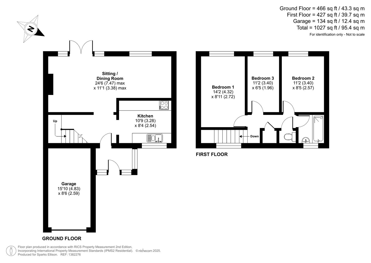
Osborne Drive, Chandler’s Ford floorplan

Accommodation



GROUND FLOOR

Entrance Porch:

Entrance Hall: Stairs to first floor.

Kitchen: 10'9" x 4'4" (3.28m x 2.54m) Comprising space for cooker, space for fridge freezer, space and plumbing for washing machine, space and plumbing for dishwasher,.

Sitting/Dining Room: 24'6" x 11'1" (7.47m x 3.38) Fireplace surround and hearth, space for table and chairs.

FIRST FLOOR

Landing: Access to loft space, cupboard housing boiler.

Bedroom 1: 14'2" x 8'11" (4.32m x 2.72m)

Bedroom 2: 11'2" x 8'5" (3.40m x 2.57m)

Bedroom 3: 11'2" x 6'5" (3.40m x 1.96m)

Bathroom: Comprising bath with shower over, wash hand basin.

Cloakroom: Comprising WC.

Outside



Front: Comprising area laid to shingle, mature bushes and plants, driveway providing off road parking.

Rear Garden: Measures approximately 32' x 26' and comprises block paved patio area, area laid to shingle, mature plants and bushes.

Garage: 15'10" x 8'6" (4.83m x 2.59m) With up an dover door.

Other Information



Tenure: Leasehold - Please note the property is currently leasehold shared ownership but the seller intends to staircase to 100% to enable freehold ownership upon completion.

Approximate Age: 1969

Approximate Area: 1027sqft/95.4sqm (Including garage)

Sellers Position: No forward chain

Heating: Gas central heating

Windows: UPVC double glazing

Loft Space: Light connected

Infant/Junior School: Fryern Infant/Junior School

Secondary School: Toynbee Secondary School

Council Tax: Band C

Local Council: Eastleigh Borough Council - 02380 688000

Agents Note: If you have an offer accepted on a property we will need to, by law, conduct Anti Money Laundering Checks. There is a charge of £60 including vat for these checks regardless of the number of buyers involved.