Peverells Wood Close, Peverells Wood, Chandler's Ford - Sparks Ellison
For Sale

Peverells Wood Close

Chandler's Ford £300,000

Rooms

3 x bedrooms
1 x bathroom
1 x reception room

About the property

A three bedroom home situated in a cul-de-sac within the popular Peverells Wood area. The convenient location is within walking distance to the local and highly regarded Scantabout School with the centre of Chandler's Ford and bus services to Southampton and Winchester a short distance away. The property also falls within the catchment for the popular Thornden Secondary School and easy access can be gained to the M3 and M27 motorway network. The house itself provides well proportioned rooms, with the addition of a family room to the rear, with three good sized bedrooms, a bathroom suite and cloakroom to the first floor. There is also the benefit of a garage in a nearby block.

Map

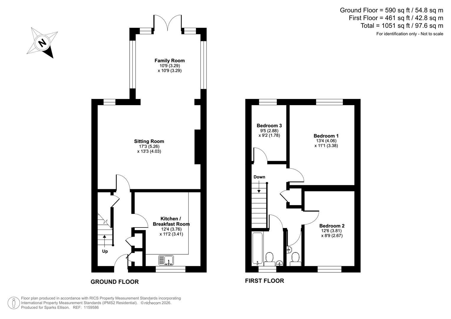
Floorplan

Peverells Wood Close, Peverells Wood, Chandler’s Ford floorplan

Accommodation



GROUND FLOOR

Entrance Hall: Built in storage cupboard, stairs to first floor, under stairs storage cupboard, cupboard housing boiler.

Kitchen/Breakfast Room: 12'4" x 11'2" (3.76m x 3.40m) Built in double oven, built in gas hob, fitted extractor hood, space and plumbing for dishwasher, space and plumbing for washing machine, space for fridge freezer.

Sitting Room: 17'3" x 13'3" (5.26m x 4.04m)

Family Room: 10'9" x 10'9" (3.29m x 3.29m)

FIRST FLOOR

Landing: Access to loft space.

Bedroom 1: 13'4" x 11'1" (4.06m x 3.38m)

Bedroom 2: 12'6" x 8'9" (3.81m x 2.67m)

Bedroom 3: 9'5" x 9'2" (2.88m x 1.78m)

Bathroom: Comprising a bath with shower over, wash hand basin, wc.

Cloakroom: 4'8" x 2'5" (1.42m x 0.74m) Comprising a wash hand basin, WC

Outside



Front: Planted bed, pathway to front door.

Rear Garden: Measures approximately 18' x 16' and comprises paved patio area, planted bed, garden shed, gate providing rear pedestrian access

Garage: 16’3” x 7’10” with up and over door. The garage is located in a block to the right of the property and is the 2nd garage in on the right hand side block with a grey door.

Other Information



Tenure: Freehold

Approximate Age: 1973

Approximate Area: 1051sqft/97.6sqm

Sellers Position: Looking for forward purchase

Heating: Gas central heating

Windows: UPVC double glazing

Loft Space: Partially boarded

Infant/Junior School: Scantabout Primary School

Secondary School: Thornden Secondary School

Council Tax: Band C

Local Council: Eastleigh Borough Council - 02380 688000