Poppyfields, Knightwood Park, Chandler's Ford - Sparks Ellison
Sold STC

Poppyfields

Chandler's Ford £475,000

Rooms

3 x bedrooms
2 x bathrooms
2 x reception rooms

About the property

Located in a popular cul de sac within the sought after Knightwood Park development in Chandler's Ford, this well-presented detached family home offers balanced accommodation and a practical layout, ideal for modern family living. The ground floor provides two reception rooms, offering clearly defined spaces for both everyday living and entertaining. A third reception room adds flexibility and could be used as a study, playroom or additional sitting room, depending on requirements. The bathroom suites have been re fitted to a high standard, giving the property a clean, contemporary finish. To the rear, the westerly facing garden enjoys good afternoon and evening sun and provides a pleasant, private outdoor space. Off-road parking for two vehicles is located to the front of the property. The house falls within the catchment for the highly regarded Thornden School and benefits from the amenities and green spaces that make Knightwood Park a consistently popular choice with families. A well positioned home offering adaptable accommodation in a convenient and established residential setting.

Map

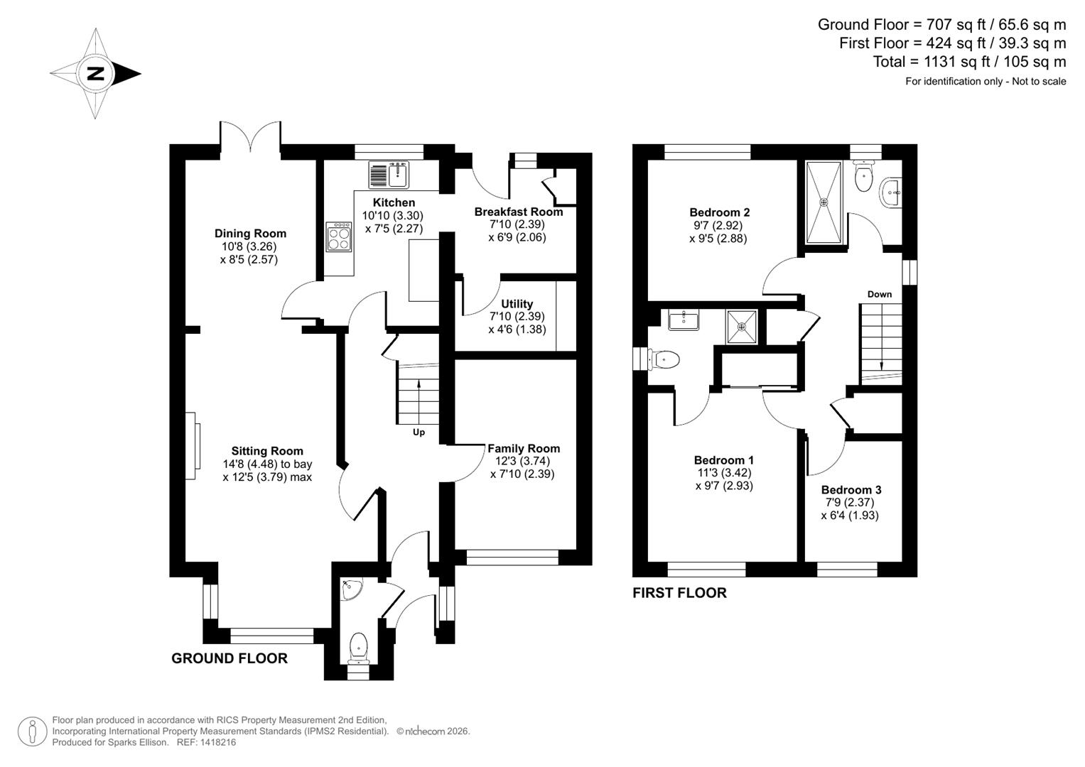
Floorplan

Poppyfields, Knightwood Park, Chandler’s Ford floorplan

Accommodation



Ground Floor

Entrance Vestibule:

Entrance Hall: Understairs storage cupboard.

Sitting Room: 14'8" x 12'5" (4.48m x 3.79m) Fireplace surround and hearth, bay window.

Dining Room: 10'8" x 8'5" (3.26m x 2.57m)

Kitchen: 10'10" x 7'5" (3.30m x 2.27m) Built in oven, built in electric hob, fitted extractor hood, space and plumbing for dishwasher, space for fridge freezer.

Breakfast room: 7'10" x 6'9" (2.39m x 2.06m)

Utility Room: 7'10" x 4'6" (2.39m x 1.38m) Space and plumbing for washing machine, space for tumble dryer, space for fridge.

Family Room: 12'3" x 7'10" (3.74m x 2.39m)

First Floor

Landing: Access to loft space, built in airing cupboard, built in storage cupboard.

Bedroom 1: 11'3" x 9'7" (3.42m x 2.93m) Built in double wardrobe.

En Suite: Comprising shower in cubicle, wash hand basin with cupboard under, WC, tiled walls, tiled floor.

Bedroom 2: 9'7" x 9'5" (2.92m x 2.88m)

Bedroom 3: 7'9" x 6'4" (2.37m x 1.93m)

Shower Room: Comprising open ended shower enclosure, wash hand basin with cupboard under, WC, tiled walls, tiled floor.

Outside



Front: Driveway providing off road parking with further area laid to gravel providing further off road parking, electric vehicle charging point.

Rear Garden: Measures approximately 34’ x 30’ and comprises paved patio area, outside tap, area laid to lawn, further paved patio area, garden shed, garden bar, area laid to shingle, planted beds.

Other Information



Tenure: Freehold

Approximate Age: 1997

Approximate Area: 1131 sq ft / 105 sq m

Sellers Position: Looking for a forward purchase out of area

Heating: Gas central heating

Windows: UPVC Double glazing

Loft Space: Partially boarded with light connected and ladder connected

Infant/Junior School: Knightwood Primary School / St Francis C of E Primary School

Secondary School: Thornden School

Local Council: Test Valley Borough Council - 01264 368000

Council Tax: Band E

Agents Note: If you have an offer accepted on a property we will need to, by law, conduct Anti Money Laundering Checks. There is a charge of £60 including vat for these checks regardless of the number of buyers involved.