Primrose Close, Chandler's Ford, Eastleigh - Sparks Ellison
Sold STC

Primrose Close

Chandler's Ford £450,000

Rooms

3 x bedrooms
2 x bathrooms
2 x reception rooms

About the property

Located in the highly sought-after location of Primrose Close in Valley Park, this attractively designed detached house offers a perfect blend of comfort and convenience. Situated in a quiet cul-de-sac, this property is ideal for families and is within walking distance of essential amenities. The home boasts two spacious reception rooms, providing excellent living space with three comfortable bedrooms and two bathrooms. One of the standout features of this delightful home is its west-facing garden, which invites plenty of natural light throughout and offers a lovely outdoor space. The property is ideally situated for local schools, leisure facilities, woodland walks and nearby shops with access to the motorway and train stations within easy reach.

Map

Floorplan

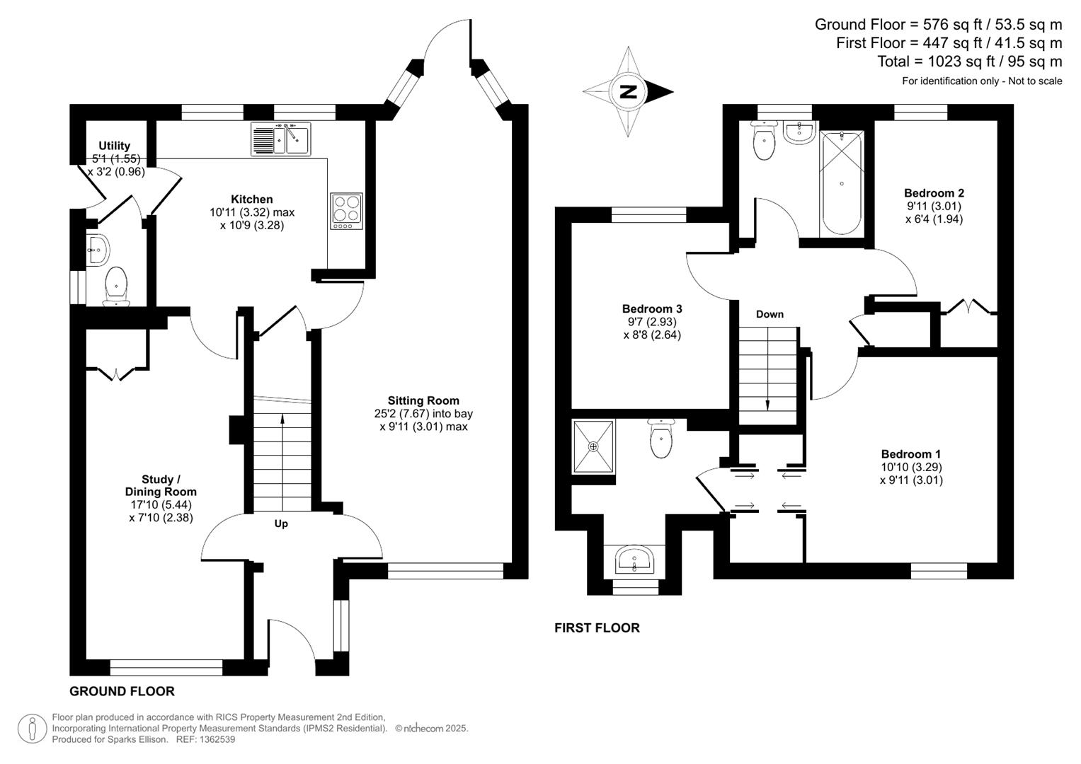
Primrose Close, Chandler’s Ford, Eastleigh floorplan

Accommodation



GROUND FLOOR

Reception Hall: Stairs to first floor.

Sitting/Dining Room: 25'2" x 9'11" (7.67m x 3.01m) Bay window and door to rear garden.

Kitchen: 10'11" x 10'9" (3.32m x 3.28m) Range of units, electric oven, gas hob with extractor hood over, space and plumbing for appliances.

Utility Room: 5'1" x 3'2" (1.55m x 0.96) Space and plumbing for washing machine, boiler door to outside.

Cloakroom: Wash basin, WC.

Dining Room/Study: 17'10" x 7'10" (5.44m x 2.38m) Storage cupboard.

FIRST FLOOR

Landing: Hatch to loft space, airing cupboard.

Bedroom 1: 10'10" x 9'11" (3.29m x 3.01m) Two fitted wardrobes.

En-suite Shower Room: Suite comprising shower cubicle, wash basin with cupboard under, WC.

Bedroom 2: 9'11" x 6'4" (3.01m x 1.94m)

Bedroom 3: 9'7" x 8'8" (2.93m x 2.64m) Built in wardrobe.

Bathroom: suite comprising bath with mixer tap and shower attachment, wash basin, WC.

Outside



Front: Double width driveway affording parking for two vehicles with adjacent paved area enclosed by hedging, side access to rear garden.

Rear Garden: An attractive feature of the property measuring approximately 34' x 27' affording a pleasant westerly aspect. A patio joins the house leading onto a lawned area enclosed by walling and fencing, garden shed.

Other Information



Tenure: Freehold

Approximate Age: 1996

Approximate Area: 95sqm/1023sqft

Sellers Position: Looking for forward purchase

Heating: Gas central heating

Windows: UPVC double glazed windows

Primary Loft Space: Partially boarded with ladder and light connected.

Secondary Loft Space: Boarded for additional storage

Infant/Junior School: St. Francis CE Primary/Knightwood Primary School

Secondary School: Toynbee Secondary School

Council Tax: Band E

Local Council: Test Valley Borough Council - 01264 368000

Agents Note: If you have an offer accepted on a property we will need to, by law, conduct Anti Money Laundering Checks. There is a charge of £60 including vat for these checks regardless of the number of buyers involved.