Symonds Close, Chandler's Ford - Sparks Ellison
For Sale

Symonds Close

Chandler's Ford £500,000

Rooms

4 x bedrooms
2 x bathrooms
2 x reception rooms

About the property

A beautifully presented four bedroom detached home situated in a quiet cul-de-sac towards the south side of Chandler's Ford. The property affords two main reception rooms to the ground floor together with kitchen, utility room and cloakroom. On the first floor there is a spacious main bedroom with fitted wardrobes and re-fitted en-suite shower room, further double bedroom, two single bedrooms and re-fitted family bathroom. In addition to this is an integral single garage, parking for two cars and landscaped rear garden affording a pleasant south westerly aspect.

Map

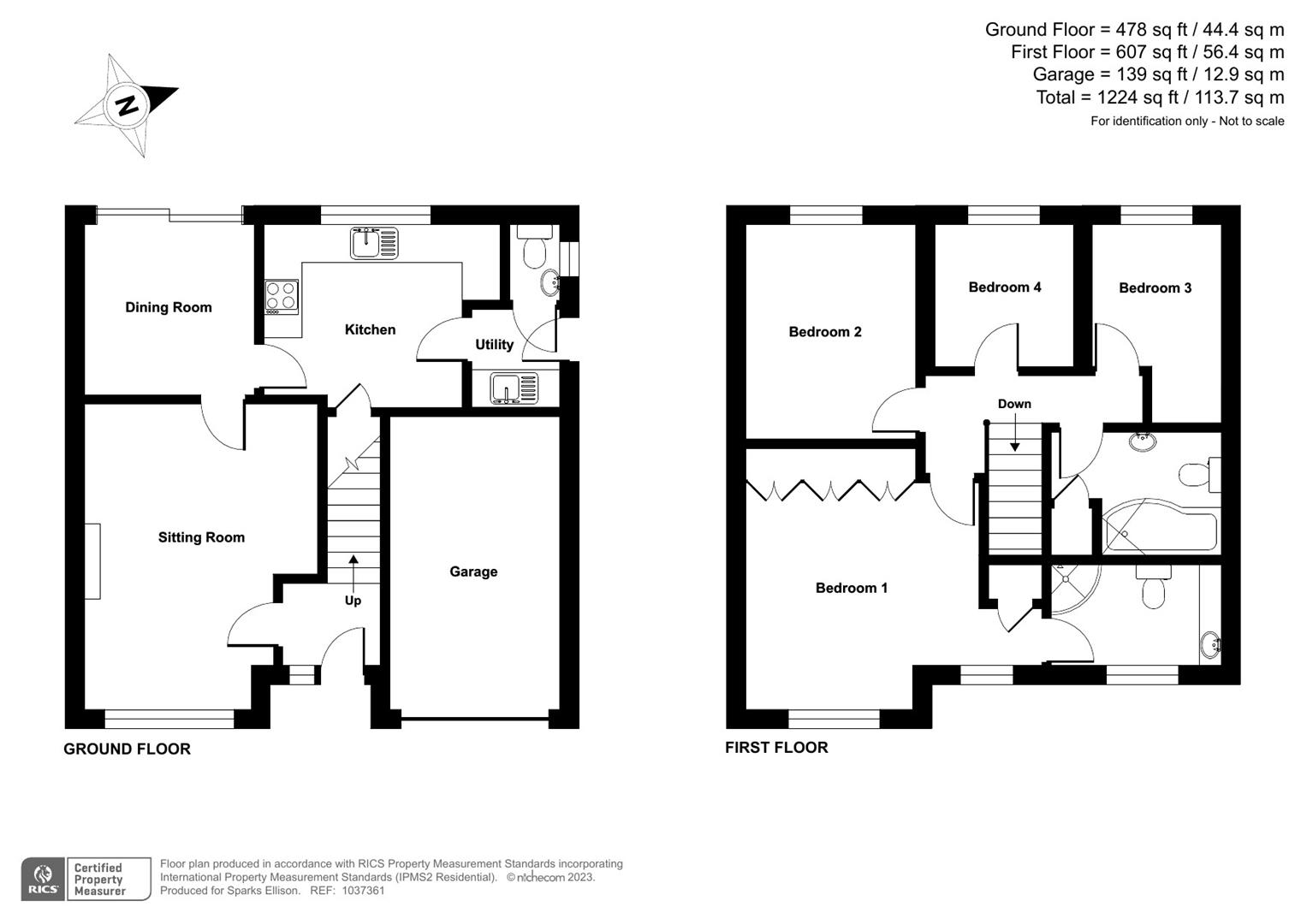
Floorplan

Symonds Close, Chandler’s Ford floorplan

Accommodation



GROUND FLOOR

Entrance Hall: Stairs to first floor.

Sitting Room: 16'2" x 12' (4.93m x 3.66m) Fireplace with electric fire.

Dining Room: 10' x 9'2" (3.05m x 2.79m) Patio doors to rear garden.

Kitchen: 10'6" x 9'7" (3.20m x 2.92m) Range of units, double electric oven, Induction hob with extractor hood over, space and plumbing for further appliances, under stairs cupboard with space for fridge/freezer.

Utility Room: 5'1" x 4'9" (1.55m x 1.45m) Sink unit, space and plumbing for washing machine, boiler, door to outside.

Cloakroom: White suite comprising wash basin, w.c.

FIRST FLOOR

Landing: Hatch to loft space.

Bedroom 1: 12'4" x 12'1" (3.76m x 3.68m) Measurement up to range of wall to wall fitted wardrobes, further storage cupboard.

En-suite Shower Room: 8' x 5'5" (2.44m x 1.65m) White suite with chrome fitments comprising corner shower cubicle with glazed screen, wash basin with cupboard under, w.c, tiled walls and floor.

Bedroom 2: 11'2" x 8'11" (3.40m x 2.72m)

Bedroom 3: 10'6" x 7' (3.20m x 2.13m)

Bedroom 4: 7'6" x 7'5" (2.29m x 2.26m) Fitted work station.

Bathroom: 8' x 6'4" (2.44m x 1.93m) White suite with chrome fitments comprising P shaped bath with mixer tap and shower attachment and glazed screen, wash basin with cupboard under, w.c., tiled walls, airing cupboard.

Outside



Front: To the front of the property is a double width driveway, adjacent gravelled area and raised sleeper planting, side access to rear garden.

Rear Garden: Approximately 39'8" x 32'3". The rear garden has been attractively landscaped with a paved area, adjoining the property with electric awning. Areas of slate chippings and a deck, well stocked borders, enclosed by fencing, pleasant south westerly aspect.

Garage: 16' x 8' (4.88m x 2.44m) Light and power, electric door.

Other Information



Tenure: Freehold

Approximate Age: 1992

Approximate Area: 1224sqft/113.7sqm

Sellers Position: Looking for forward purchase

Heating: Gas central heating

Windows: UPVC double glazed windows

Loft Space: Partially boarded with ladder and light connected

Infant/Junior School: Fryern Infant/Junior School

Secondary School: Toynbee Secondary School

Council Tax: Band E

Local Council: Eastleigh Borough Council - 02380 688000

Agents Note: If you have an offer accepted on a property we will need to, by law, conduct Anti Money Laundering Checks. There is a charge of £60 including vat for these checks regardless of the number of buyers involved.