Tottehale Close, North Baddesley, Southampton - Sparks Ellison
Sold STC

Tottehale Close

Southampton £210,000

Rooms

1 x bedroom
1 x bathroom
1 x reception room

About the property

Situated within a quiet cul-de-sac in North Baddesley, this delightful one bedroom cluster house offers spacious rooms throughout. The house is presented in good condition, ensuring that you can move in with ease and start enjoying your new home right away. The ground floor benefits a sitting/dining area and a modern kitchen. The first floor provides a double bedroom with built in wardrobes as well as a tidy bathroom. Externally the property benefits a parking space and large shingled front garden. This home has no forward chain.

Map

Floorplan

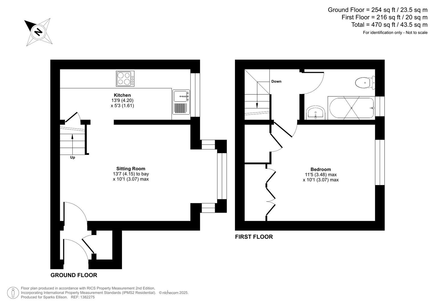
Tottehale Close, North Baddesley, Southampton floorplan

Accommodation



Ground Floor

Porch: Storage cupboard, accommodating fuse board and meter.

Sitting/Dining Room: 13'7" to bay x 10'1" max (4.15m x 3.07m) Bay window.

Kitchen: 13'9" x 5'3" (4.20m x 1.61m) Range of units including gas hob, electric oven, fridge, freezer and space for washing machine. Under stair cupboard.

First Floor

Landing: Access to loft space.

Bedroom 1: 11'5" x 10'1" (3.48m x 3.07m) Built in wardrobes and airing cupboard above stairs.

Bathroom: White suite comprising bath with shower over, wash basin, and wc.

Outside

Other Information



Tenure: Freehold

Approximate Age: 1983

Approximate Area: 470sqft/43.5sqm

Sellers Position: No forward chain

Heating: Gas central heating

Windows: UPVC double glazing

Local Council: Test Valley Borough Council - 01264 368000

Council Tax: Band B

Front: Parking for one car, shingled front garden