Valley Road, Chandler's Ford, Eastleigh - Sparks Ellison
Let Agreed

Valley Road

Chandler's Ford £2,900 pcm

Rooms

6 x bedrooms
3 x bathrooms
3 x reception rooms

About the property

A beautiful double-fronted six-bedroom detached house built around 1900 with a very good sized south facing back garden and to the front off road parking for several vehicles. Along with a kitchen/dining room, utility, and cloakroom on the ground floor the property has three sitting rooms, one of which leads into a conservatory with French doors to the patio. On the first floor are five bedrooms, the family bathroom and a 31’ landing with stairs to the second floor where the master bedroom and an en suite are located.

Map

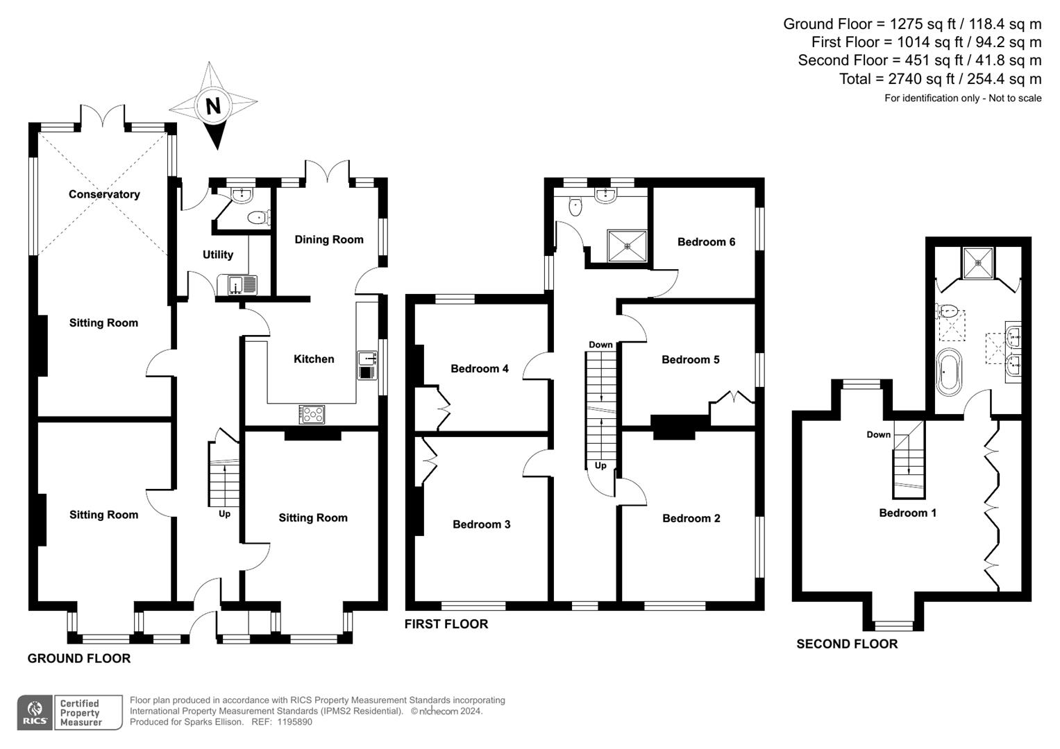
Floorplan

Valley Road, Chandler’s Ford, Eastleigh floorplan

Accommodation



GROUND FLOOR

Porch: Double fronted porch with inner door leading to hallway, tiled, floor, meter cupboard.

Hallway: 26'11" x 6' (8.20m x 1.83m) Covered radiator, stairs to first floor, wood effect flooring, under stairs storage cupboard.

Sitting Room: 19'5" into bay x 12'1" into recess (5.92m into bay x 3.68m into recess) Two radiators, open fireplace with wood surround (not in use).

Sitting Room/Conservatory: 26'2" x 12'1" narrowing to 11'6" (7.98m x 3.68m narrowing to 3.51m) Two radiators, wood effect floor, open fireplace with brick surround (not in use), French doors leading to back garden, built in shelves, two ceiling fans.

Cloakroom: 5'1" x 3'9" (1.55m x 1.14m) Vertical radiator, white suite comprising wash hand basin and WC, chrome fitments, tiled floor.

Kitchen/Dining Room: 21' x 12' narrowing to 9'2" (6.40m x 3.66m narrowing to 2.79m) Radiator, range of wooden wall and base units with black marble effect work tops, Belfast sink, Rangemaster oven, dishwasher, quarry tiled floor, French doors to patio, stable door giving side access, freestanding American style fridge freezer, built in shelves.

Utility: 9'8" x 8'11" (2.95m x 2.72m) Vertical radiator, range of wooden wall and base units with mottled black marble effect work top, washing machine, tumble dryer, Belfast sink with chrome mixer tap, tiled floor, coat hooks, door to garden.

Sitting Room: 18'4" into bay x 12'1" into recess (5.59m into bay x 3.68m) Two radiators, open fireplace with wood surround (not in use).

FIRST FLOOR

Landing: 31'3" x 6'1" (9.53m x 1.85m) Covered radiator, stairs to second floor.

Bedroom 3: 14'9" x 12'1" narrowing to 10'9" (4.50m x 3.68m narrowing to 3.28m) Radiator, open fireplace with wooden surround (not in use), built in wardrobe.

Bedroom 4: 11'5" x 12'1" narrowing to 10' (3.48m x 3.68m narrowing to 3.05m) Radiator, fireplace with wooden surround (not in use), built in wardrobe.

Bathroom: 9'1" x 6'9" narrowing to 5'3" (2.77m x 2.06m narrowing to 1.60m) Radiator, white suite with chrome fitments comprising wash basin with cupboard under, wide shower with glazed screen, WC, tiled floor.

Bedroom 6: 10' x 9'1" (3.05m x 2.77m) Radiator.

Bedroom 5: 12'1" x 11' narrowing to 8'7" (3.68m x 3.35m narrowing to 2.62m) Radiator, fireplace with wooden surround (not in use), built in wardrobe.

Bedroom 2: 15' into recess x 12'2" (4.57m to recess x 3.71m) Radiator, dual aspect windows.

SECOND FLOOR

Bedroom 1: 18'4" into front window recess x 17'8" (5.59m into window recess x 5.38m) Two radiators, range of dark wood built in wardrobes, loft hatch, window seat, eaves access, door to en suite.

En-suite: 12'4" x 7'9" (3.76m x 2.36m) Two radiators, white suite with chrome fitments comprising bath, built in shower with cupboard storage to either side, WC, double basin vanity unit with dark marble effect top with wooden drawers and cupboards under, two Velux windows, vinyl flooring.

Outside



Front: Gravel driveway with parking for several vehicles, lawned area with shrubs and trees, side access to right and left of property.

Rear Garden: Large patio next to house leading to lawned area and borders with mature shrubs and trees, wooden shed.

Other Information



Approximate Area: 254.4sqm/2740sqft

Management: Tenant find only

Furnished/Unfurnished: Unfurnished

Availability: Mid April 2026

Deposit: Holding deposit: £669.23
Security Deposit: £3346.00


Heating: Gas central heating

Windows: UPVC double glazed windows

Infant/Junior School: Chandler's Ford Infant/Merdon Junior School

Secondary School: Thornden Secondary School

Council Tax: Band F

Local Council: Eastleigh Borough Council - 02380 688000