Westmorland Way, Chandlers Ford - Sparks Ellison
Sold STC

Westmorland Way

Chandlers Ford £335,000

Rooms

3 x bedrooms
1 x bathroom
2 x reception rooms

About the property

Located on Westmorland Way, Chandlers Ford, and built around 1970, the property has been beautifully presented and thoughtfully extended to the rear, creating a delightful study or snug area that enhances the living space. Upon entering, you are welcomed into a spacious living room that offers a perfect setting for relaxation and entertaining. The well-fitted kitchen is both functional and inviting. The property boasts two reception rooms, providing flexible living space. With three comfortable bedrooms, this home is ideal for families or those seeking extra room. The bathroom is well-appointed, ensuring convenience for all residents. Outside, the property features a driveway that accommodates up to three cars, along with a garage for additional storage or parking needs. The central location of this home is particularly advantageous, offering easy access to local amenities, schools, and transport links.

Map

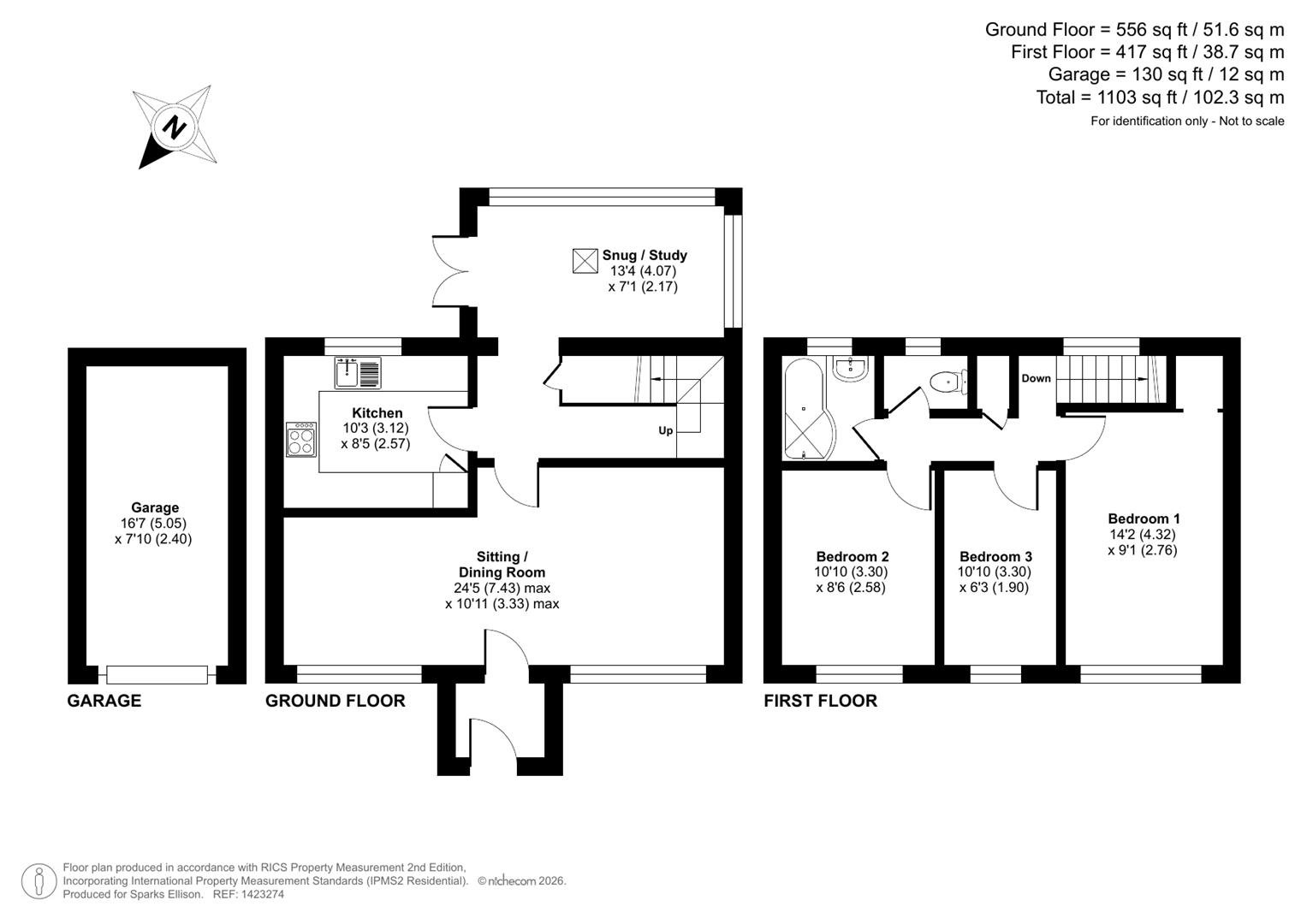
Floorplan

Westmorland Way, Chandlers Ford floorplan

Accommodation



Ground Floor

Entrance hall:

Sitting/dining room: 24'5" x 10'11" (7.43m x 3.33m)

Inner hallway: Stairs to first floor with cupboard under.

Kitchen: 10'3" x 8'5" (3.12m x 2.57m) Fitted with a comprehensive range of units, electric double oven, electric hob with extractor hood over, two fridges, washing machine and freezer to remain, boiler.

Study/snug: 13'4" x 7'1" (4.07m x 2.17m) Double doors to rear garden.

First floor

Landing: Hatch to loft space, airing cupboard.

Bedroom 1: 14'2" x 9'1" (4.32m x 2.76m) Built in cupboard.

Bedroom 2: 10'10" x 8'6" (3.30m x 2.58m)

Bedroom 3: 10'10" x 6'3" (3.30m x 1.90m)

Bathroom: Modern suite comprising P shaped bath with shower unit over and glazed screen, wash basin with cupboard under, tiled floor.

Cloakroom: Suite comprising WC, storage cupboard, tiled floor.

Outside



Front: To the front of the property is a gravel and hard standing providing off street parking for approximately 3 to 4 vehicles. A path leads down to the property. The front door is flanked by gravelled areas with planting.

Rear: Approximately 25’ x 22’7”, sundeck ideal for outside entertaining leading onto an area of artificial grass, enclosed by fencing, rear gate, storage shed with power connected.

Garage: Light and power

Other Information



Tenure: Freehold

Approximate Age: 1970

Approximate Area: 1103 sq ft / 102.3 sq m

Sellers Position: Looking for a forward purchase

Heating: Gas central heating

Windows: UPVC Double glazing

Loft Space: Partially boarded and connected light

Infant/Junior School: Fryern Infant School / Fryern Junior School

Secondary School: The Toynbee School

Local Council: Eastleigh Borough Council - 02380 688000

Council Tax: Band C

Agents Note: If you have an offer accepted on a property we will need to, by law, conduct Anti Money Laundering Checks. There is a charge of £60 including vat for these checks regardless of the number of buyers involved.