Wychwood Grove, Hiltingbury, Chandlers Ford - Sparks Ellison
Sold STC

Wychwood Grove

Chandlers Ford £500,000

Rooms

4 x bedrooms
2 x bathrooms
2 x reception rooms

About the property

*CASH BUYERS ONLY* A delightful 4 bedroom detached home pleasantly situated in a quiet cul-de-sac on the edge of Hiltingbury and within walking distance to the local Hiltingbury lakes, shops on Hiltingbury Road, bus services to Southampton Winchester and Thornden School. The property affords spacious well proportioned rooms and is being offered for sale with no forward chain. Whilst being presented in neat and tidy fashion, the property would benefit from some updatin,g with a particular benefit being a rear garden measuring approximately 70' with a pleasant westerly aspect. The centre of Chandlers Ford is a short distance away together with junction 12 of the M3 providing links to neighbouring towns and cities, railway stations and Southampton airport. Due to a Structural Engineer identifying potential structural issues with the garage this property is only suitable for cash buyers.

Map

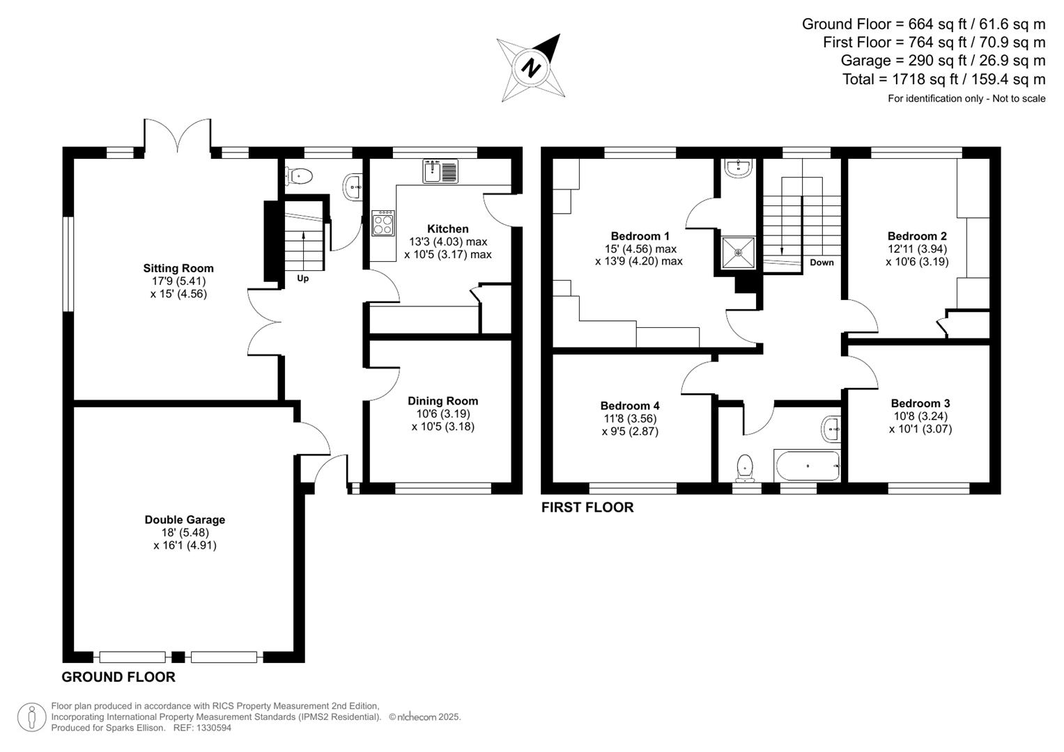
Floorplan

Wychwood Grove, Hiltingbury, Chandlers Ford floorplan

Accommodation



Ground Floor

Reception Hall: Stairs to first floor.

Cloakroom: Wash basin, wc, tiled floor.

Sitting Room: 17'9" x 15' (5.41m x 4.56m) Fireplace, double doors to rear garden.

Dining Room: 10'6" x 10'5" (3.19m x 3.18m)

Kitchen: 13'3" max x 10'5" max (4.03m x 3.17m) Range of units, electric oven, gas hob with extractor hood over, space and plumbing for dishwasher, larder cupboard, door to outside.

First Floor

Landing: Hatch to loft space.

Bedroom 1: 15' x 13'9 (4.56m x 4.20m) Fitted wardrobes, cupboards and drawer units.

En-Suite Shower Room: Suite comprising shower cubicle and wash basin.

Bedroom 2: 12'11" x 10'6" (3.94m x 3.19m) Fitted wardrobes and dressing table, storage cupboard.

Bedroom 3: 10'8" x 10'1" (3.24m x 3.07m)

Bedroom 4: 11'8" x 9'5" (3.56m x 2.87m)

Bathroom: Suite comprising bath with mixer tap and shower attachment, wash basin, WC, tiled walls.

Outside



Front: To the front of the property is a double width driveway leading to the double garage, adjacent lawned area with flower border enclosed by walling and hedging, side access to rear garden.

Rear Garden: An attractive feature of the property measuring approximately 70' x 39' affording a pleasant westerly aspect. A patio adjoins the house leading onto a lawned area surrounded by well stocked flower and shrub borders, enclosed by hedging and fencing.

Double Garage: Light and power, space and plumbing for a washing machine, space for further appliances.

Other Information



Tenure: Freehold

Approximate Age: 1972

Approximate Area: 1718sqft/159.4sqm (Including garage)

Sellers Position: No forward chain

Heating: Gas central heating

Windows: UPVC double glazed windows

Loft Space: Light connected

Infant/Junior School: Chandlers Ford Infant School / Merdon Junior School

Secondary School: Thornden Secondary School

Local Council: Eastleigh Borough Council - 02380 688000

Council Tax: Band E

Agents Note: If you have an offer accepted on a property we will need to, by law, conduct Anti Money Laundering Checks. There is a charge of £60 including vat for these checks regardless of the number of buyers involved.