Solent Close, Chandler's Ford - Sparks Ellison
Sold STC

Solent Close

Chandler's Ford £315,000

Rooms

3 x bedrooms
1 x bathroom

About the property

Welcome to this modern three-bedroom terraced home on Solent Close in Chandler’s Ford. The property offers well proportioned accommodation throughout, with a practical layout that works well for both day to day living and entertaining. There are three good-sized bedrooms, providing flexibility for families, guests, or those needing a home office. A key benefit is the driveway, offering off-road parking for multiple vehicles. Solent Close is well positioned for access to local amenities, including shops, schools, and transport links, making it a convenient and popular location. Overall, this is a well-presented home with good space and parking.

Map

Floorplan

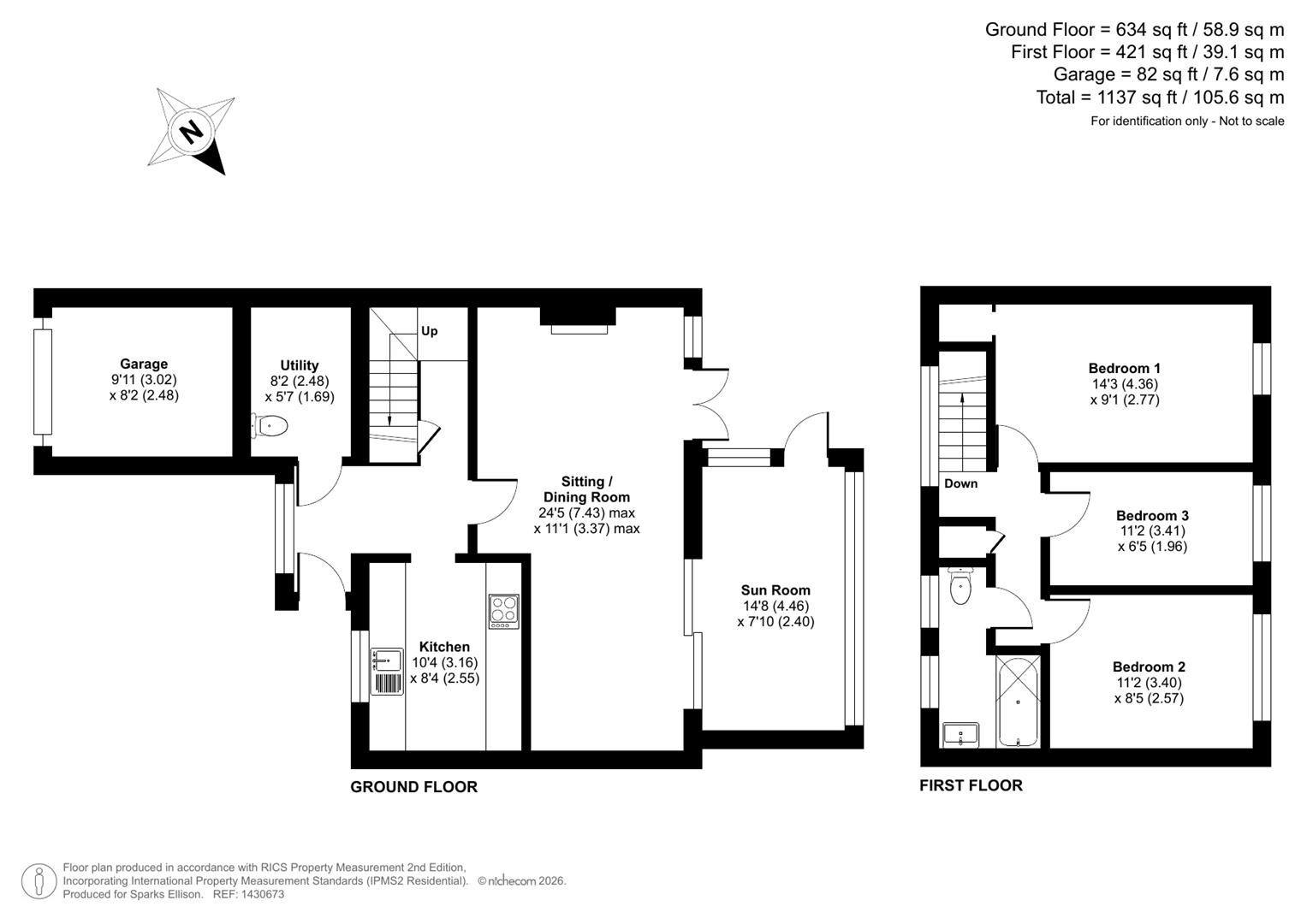
Solent Close, Chandler’s Ford floorplan

Accommodation



Ground Floor

Hallway:

Kitchen: 10'4" x 8'4" (3.16m x 2.55m)

Utility: 8'2" x 5'7" (2.48m x 1.69m)

Sitting/dining room: 24'5" x 11'1" (7.43m x 3.37m) French doors to rear garden and access to conservatory.

Sun room: 14'8" x 7'10" (4.46m x 2.40m)

First Floor

Bedroom 1: 14'3" x 9'1" (4.36m x 2.77m) Overstair storage cupboard.

Bedroom 2: 11'2" x 8'5" (3.40m x 2.57m)

Bedroom 3: 11'2" x 6'5" (3.41m x 41.96m)

Bathroom: Modern suite comprising bath, wash basin with cupboard under and WC.

Outside



Front: Driveway parking for multiple cars and access to garage/store room.

Rear: Landscaped garden with decking area, steps onto lawn area and further steps to rear access.

Garage: 9'11" x 8'2" (3.02m x 2.48m) Up and over door

Other Information



Tenure: Freehold

Approximate Age: 1970's

Approximate Area: 1137sq ft / 105.6 sq m

Sellers Position: Looking for a forward purchase.

Heating: Gas central heating

Windows: UPVC double glazing

Loft Space: Partially boarded, light connected.

Infant/Junior School: Fryern Infant School / Fryern Junior School

Secondary School: The Toynbee School

Local Council: Eastleigh Borough Council - 02380 688000

Council Tax: Band

Agents Note: If you have an offer accepted on a property we will need to, by law, conduct Anti Money Laundering Checks. There is a charge of £60 including vat for these checks regardless of the number of buyers involved.